Maison neuve à
Monnerville
(91930) Référence :
PM2290565_3
Prix du projet : Maison avec Terrain
prix 408 500 €
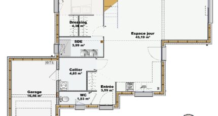
- 6 pièces
- 5 chambres
- Surface maison 114 m2
À Monnerville, au coeur de l'Essonne (91930) - Faites construire votre maison écologique en ossature bois de 120 m² sur une parcelle viabilisée de presque 700 m² !
Sur un beau terrain idéalement situé à Monnerville, nous vous proposons notre modèle CANOPÉE, une construction d'une maison moderne et confortable comprenant 5 chambres spacieuses et 2 salles de bains. L'espace idéal pour accueillir toute votre famille dans un cadre de vie privilégié.
Cette demeure est conçue par les Maisons Balency d'Ormoy selon un mode constructif innovant : l'ossature bois. Un choix qui allie modernité, performance énergétique et respect de l'environnement.
✨ Les atouts de votre future maison :
- Isolation thermique et acoustique renforcée : près de deux fois plus performante qu'une maison traditionnelle, pour un confort optimal hiver comme été.
- Construction éco-responsable : 65 % de déchets en moins sur le chantier, un impact climatique réduit de 60 %, et du bois issu de forêts éco-gérées.
- Confort et économies : des factures d'énergie réduites grâce à la limitation des déperditions thermiques et à une gestion optimisée de l'énergie.
- Chantier rapide et optimisé : assemblage des murs en une journée, livraison plus rapide qu'un chantier classique, et donc moins de frais intercalaires ou de loyers à supporter.
- Un matériau durable : isolant naturel, sans contrainte d'entretien, avec un bilan carbone positif.
- Conception et fabrication françaises, certifiées et garanties.
Votre projet sera accompagné de A à Z : recherche du terrain, démarches administratives, étude personnalisée et conception sur-mesure. Avec Maisons BALENCY, vous bénéficiez d'une expertise reconnue et de solutions innovantes pour une maison à la fois écologique, économique et moderne.
👉 Ne manquez pas cette opportunité unique de construire une maison dans l'air du temps, respectueuse de l'environnement et pensée pour le confort de toute votre famille.
Contactez-nous dès aujourd'hui a
Mentions légales
Terrain proposé par un partenaire foncier selon disponibilités et autorisation de publicité au prix de 96 000 €. Hors droit d'enregistrement et frais de notaire. Maison proposée, avec un contrat de construction de maison individuelle, dans le cadre de la loi du 19/12/1990, au prix de 312 500 € (Hors branchements et raccordements, papiers peints, peintures, revêtement de sol dans les chambres, qui sont chiffrés dans les travaux qui restent à charge du client. Tarif modifiable sans préavis). Étiquette énergie : A. Différents modèles disponibles pour ce terrain. Assurances et garanties du constructeur comprises (RC professionnelle, décennale, dommage ouvrage).Agence Maisons Balency de Ormoy (91540)
- Téléphone :
- 09 67 70 15 81
- Adressse :
- 23 chemin de Tournenfils - 1er étage
91540 Ormoy, France
