Maison neuve à
Monnerville
(91930) Référence :
PM2290641_1
Prix du projet : Maison avec Terrain
prix 437 000 €
- 7 pièces
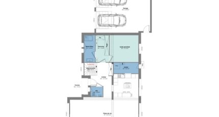
- 4 chambres
- Surface maison 157 m2
Monnerville (91930) : Demeure "Élégance Contemporaine" en R+1 de 157 m² à bâtir sur un vaste terrain viabilisé de 1011 m² !
Faites confiance aux Maisons Balency d'Ormoy pour vous construire une belle maison de 4 chambres et de 2 salles-de-bains au sein d'une paisible commune d'Île-de-France, idéalement située à 10 minutes de la gare d'Angerville (TER vers Paris en 50 min).
À seulement 5 km de Méréville et 15 km d'Étampes, vous bénéficierez d'un cadre de vie paisible avec toutes les commodités : écoles à 4 et 5 minutes, collège à proximité et lycée à 15 minutes en voiture. Commerces, transports et services essentiels sont aussi à votre portée.
Avec Les Maisons Balency d'Ormoy spécifiquement, imaginez une maison 100 % sur-mesure, conforme aux normes RE2020. Nous concevons votre projet selon vos envies ou adaptons nos modèles existants.
Terrain viabilisé + maison à partir de 437 000 €.
Contactez-nous au 06 49 43 56 27 pour profiter d'une recherche foncière gratuite et débuter ainsi votre projet en toute sérénité !
Annonce proposée par un Agent Commercial Partenaire.
Mentions légales
Terrain proposé par un partenaire foncier selon disponibilités et autorisation de publicité au prix de 107 000 €. Hors droit d'enregistrement et frais de notaire. Maison proposée, avec un contrat de construction de maison individuelle, dans le cadre de la loi du 19/12/1990, au prix de 330 000 € (Hors branchements et raccordements, papiers peints, peintures, revêtement de sol dans les chambres, qui sont chiffrés dans les travaux qui restent à charge du client. Tarif modifiable sans préavis). Étiquette énergie : A. Différents modèles disponibles pour ce terrain. Assurances et garanties du constructeur comprises (RC professionnelle, décennale, dommage ouvrage).Agence Maisons Balency de Ormoy (91540)
- Téléphone :
- 09 67 70 15 81
- Adressse :
- 23 chemin de Tournenfils - 1er étage
91540 Ormoy, France
