Maison neuve à
Mont-de-l'If (76190) Référence : SEMA9026_10

Prix du projet : Maison avec Terrain

prix 399 000 €

  • 7 pièces
  • 5 chambres
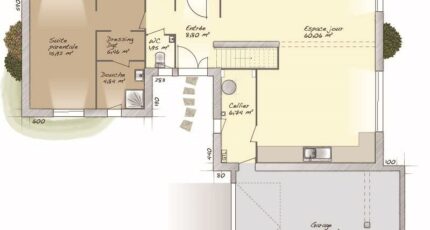
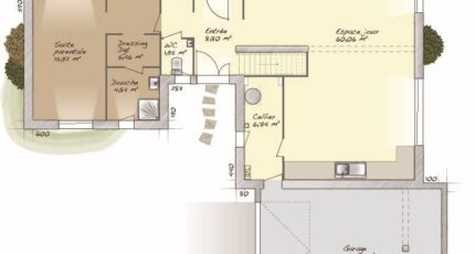
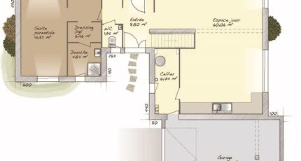
  • Surface maison 170 m2

VENTE d'une maison de 7 pièces (170 m²) à Mont-de-l'If
PROCHE DE ROUEN - MAISON 7 PIÈCES NEUVE
À vendre : à 34 km de la Manche et à 25 km de Rouen, nous vous présentons cette maison de 7 pièces de plain-pied de 170 m² à Mont-de-l'If (76190).
Son intérieur offre cinq chambres, une cuisine et trois salles de bains. Cette maison est neuve.
Le terrain du bien s'étend sur 650 m².
Niveau transports en commun, il y a les gares Motteville, Yvetot et Pavilly à moins de 10 minutes en voiture. Les autoroutes A150 et A29 sont accessibles à moins de 7 km. On trouve une boulangerie dans les environs.
Elle est à vendre pour la somme de 399 000 €.
Contactez Sébastien MASSON (06-23-38-14-17) pour obtenir de plus amples renseignements sur la maison.

Annonce proposée par un Agent Commercial Partenaire.

Mentions légales

Terrain proposé par un partenaire foncier selon disponibilités et autorisation de publicité au prix de 69 000 €. Hors droit d'enregistrement et frais de notaire. Maison proposée, avec un contrat de construction de maison individuelle, dans le cadre de la loi du 19/12/1990, au prix de 330 000 € (Hors branchements et raccordements, papiers peints, peintures, revêtement de sol dans les chambres, qui sont chiffrés dans les travaux qui restent à charge du client. Tarif modifiable sans préavis). Étiquette énergie : A. Différents modèles disponibles pour ce terrain. Assurances et garanties du constructeur comprises (RC professionnelle, décennale, dommage ouvrage).

Contactez l'agence de Boos

02 35 80 66 66

    * Champs obligatoires

    Vos informations sont traitées par HEXAOM et transmises à un conseiller commercial qui vous contactera afin de répondre à votre demande. Les plans et images présentés sur notre site sont la propriété d’HEXAOM et ne peuvent pas être reproduits sans son accord. Pour retrouver notre politique de protection des données personnelles et exercer vos droits conformément à la « loi informatique et liberté » cliquez-ici.