Maison neuve à
Mont-de-l'If (76190) Référence : SEMA9026_8

Prix du projet : Maison avec Terrain

prix 343 000 €

  • 5 pièces
  • 3 chambres
  • Surface maison 120 m2

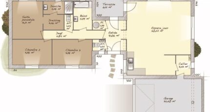
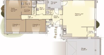
VENTE d'une maison F5 (120 m²) à Mont-de-l'If
PROCHE DE ROUEN - MAISON 5 PIÈCES NEUVE
À vendre à 34 km de la Manche et à quelques kilomètres de Rouen, à Mont-de-l'If (76190), Maisons Balency Boos vous propose cette maison de 5 pièces de plain-pied de 120 m². Elle se divise en trois chambres, une cuisine et deux salles de bains.
Le terrain de la maison s'étend sur 650 m².
La maison est neuve.
Côté transports, il y a les gares Motteville, Yvetot et Pavilly à moins de 10 minutes en voiture. Les autoroutes A150 et A29 sont accessibles à moins de 7 km. On trouve une boulangerie à quelques minutes.
Son prix de vente est de 343 000 €.
Contactez notre agence (Sébastien MASSON : 06-23-38-14-17) pour obtenir de plus amples renseignements sur ce bien. Maisons Balency Boos est là pour vous accompagner dans toutes vos démarches.

Annonce proposée par un Agent Commercial Partenaire.

Mentions légales

Terrain proposé par un partenaire foncier selon disponibilités et autorisation de publicité au prix de 69 000 €. Hors droit d'enregistrement et frais de notaire. Maison proposée, avec un contrat de construction de maison individuelle, dans le cadre de la loi du 19/12/1990, au prix de 274 000 € (Hors branchements et raccordements, papiers peints, peintures, revêtement de sol dans les chambres, qui sont chiffrés dans les travaux qui restent à charge du client. Tarif modifiable sans préavis). Étiquette énergie : A. Différents modèles disponibles pour ce terrain. Assurances et garanties du constructeur comprises (RC professionnelle, décennale, dommage ouvrage).

Contactez l'agence de Boos

02 35 80 66 66

    * Champs obligatoires

    Vos informations sont traitées par HEXAOM et transmises à un conseiller commercial qui vous contactera afin de répondre à votre demande. Les plans et images présentés sur notre site sont la propriété d’HEXAOM et ne peuvent pas être reproduits sans son accord. Pour retrouver notre politique de protection des données personnelles et exercer vos droits conformément à la « loi informatique et liberté » cliquez-ici.