Maison neuve à
Montesson
(78360) Référence :
TD2275958_2
Prix du projet : Maison avec Terrain
prix 690 970 €
- 7 pièces
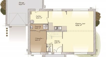
- 4 chambres
- Surface maison 160 m2
Montesson : maison de 7 pièces (160 m²) à vendre
IDÉALEMENT SITUÉE - MAISON 7 PIÈCES NEUVE
À vendre : à deux pas de la station Sartrouville du RER A (15 min de Paris), nous sommes heureux de vous présenter, idéalement située dans Montesson (78360), cette maison de 7 pièces de 160 m².
Il s'agit d'une maison de 2 niveaux. Elle inclut quatre chambres, une cuisine et deux salles de bains. La maison est neuve.
Le terrain du bien est de 378 m².
La maison se situe dans un secteur attractif. Il y a l'École Primaire Ferdinand Buisson à moins de 10 minutes à pied. Niveau transports en commun, on trouve les lignes A et C du RER à moins de 10 minutes en voiture. On trouve de nombreux commerces, deux boulangeries, une épicerie et une boucherie-charcuterie à quelques minutes du logement.
Elle est proposée à l'achat pour 690 970 €.
Contactez notre agence (Thibault DUTEURTRE : 06-23-41-73-81) pour tout renseignement sur la maison.
Annonce proposée par un Agent Commercial Partenaire.
Mentions légales
Terrain proposé par un partenaire foncier selon disponibilités et autorisation de publicité au prix de 310 000 €. Hors droit d'enregistrement et frais de notaire. Maison proposée, avec un contrat de construction de maison individuelle, dans le cadre de la loi du 19/12/1990, au prix de 380 970 € (Hors branchements et raccordements, papiers peints, peintures, revêtement de sol dans les chambres, qui sont chiffrés dans les travaux qui restent à charge du client. Tarif modifiable sans préavis). Étiquette énergie : A. Différents modèles disponibles pour ce terrain. Assurances et garanties du constructeur comprises (RC professionnelle, décennale, dommage ouvrage).Agence Maisons Balency de Coignières (78310)
- Téléphone :
- 01 34 61 42 59
- Adressse :
- Domexpo Ouest
78310 Coignières, France
