Maison neuve à
Montesson
(78360) Référence :
TD2275962_2
Prix du projet : Maison avec Terrain
prix 781 000 €
- 7 pièces
- 4 chambres
- Surface maison 160 m2
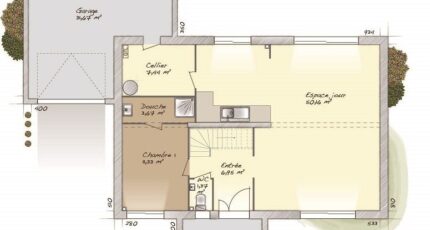
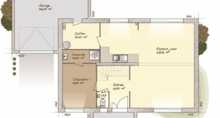
VENTE d'une maison F7 (160 m²) à Montesson
IDÉALEMENT SITUÉE - MAISON 7 PIÈCES NEUVE
En vente : au pied de la station Sartrouville (Paris à 15 min par le RER A), nous sommes ravis de vous proposer cette maison de 7 pièces de 160 m² idéalement située dans Montesson (78360). Elle dispose de quatre chambres, d'une cuisine et de deux salles de bains.
Le terrain de la propriété est de 465 m².
Cette maison possède 2 niveaux. Elle est neuve.
La maison se trouve dans un secteur convoité. Il y a l'École Primaire Ferdinand Buisson à moins de 10 minutes à pied. Côté transports, on trouve les lignes A et C du RER à moins de 10 minutes en voiture. On trouve de nombreux commerces, deux boulangeries, une épicerie et une boucherie-charcuterie à proximité.
Elle est à vendre pour la somme de 781 000 €.
Prenez contact avec notre agence (Thibault DUTEURTRE : 06-23-41-73-81) pour toute information sur le bien, sur les démarches à suivre ou sur les modalités de vente.
Annonce proposée par un Agent Commercial Partenaire.
Mentions légales
Terrain proposé par un partenaire foncier selon disponibilités et autorisation de publicité au prix de 393 000 €. Hors droit d'enregistrement et frais de notaire. Maison proposée, avec un contrat de construction de maison individuelle, dans le cadre de la loi du 19/12/1990, au prix de 388 000 € (Hors branchements et raccordements, papiers peints, peintures, revêtement de sol dans les chambres, qui sont chiffrés dans les travaux qui restent à charge du client. Tarif modifiable sans préavis). Étiquette énergie : A. Différents modèles disponibles pour ce terrain. Assurances et garanties du constructeur comprises (RC professionnelle, décennale, dommage ouvrage).Agence Maisons Balency de Coignières (78310)
- Téléphone :
- 01 34 61 42 59
- Adressse :
- Domexpo Ouest
78310 Coignières, France
