Maison neuve à
Montesson
(78360) Référence :
TD2275962_3
Prix du projet : Maison avec Terrain
prix 726 000 €
- 6 pièces
- 4 chambres
- Surface maison 90 m2
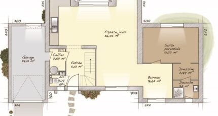
Maison F6 (90 m²) en vente à Montesson
IDÉALEMENT SITUÉE - MAISON 6 PIÈCES NEUVE
À vendre : proche de la station Sartrouville (Paris à 15 min avec le RER A), venez découvrir cette maison de 6 pièces de 90 m² idéalement située dans Montesson (78360). Elle offre quatre chambres, une cuisine et deux salles de bains.
Le terrain du bien s'étend sur 465 m².
Il s'agit d'une maison de 2 niveaux. Elle est neuve.
La maison se trouve dans un secteur prisé. L'École Primaire Ferdinand Buisson est implantée à moins de 10 minutes à pied. Côté transports en commun, on trouve deux lignes de RER (A et C) à moins de 10 minutes en voiture. Il y a de nombreux commerces, deux boulangeries, une boucherie-charcuterie et une épicerie dans les environs.
Elle est à vendre pour la somme de 726 000 €.
N'hésitez pas à prendre contact avec Thibault DUTEURTRE (tél : 06-23-41-73-81) pour plus de renseignements sur la maison, sur les modalités de vente ou sur les démarches à suivre. Maisons Balency Coignières vous accompagne dans tous vos projets immobiliers et à toutes les étapes de l'achat.
Annonce proposée par un Agent Commercial Partenaire.
Mentions légales
Terrain proposé par un partenaire foncier selon disponibilités et autorisation de publicité au prix de 393 000 €. Hors droit d'enregistrement et frais de notaire. Maison proposée, avec un contrat de construction de maison individuelle, dans le cadre de la loi du 19/12/1990, au prix de 333 000 € (Hors branchements et raccordements, papiers peints, peintures, revêtement de sol dans les chambres, qui sont chiffrés dans les travaux qui restent à charge du client. Tarif modifiable sans préavis). Étiquette énergie : A. Différents modèles disponibles pour ce terrain. Assurances et garanties du constructeur comprises (RC professionnelle, décennale, dommage ouvrage).Agence Maisons Balency de Coignières (78310)
- Téléphone :
- 01 34 61 42 59
- Adressse :
- Domexpo Ouest
78310 Coignières, France
