Maison neuve à
Montignargues (30190) Référence : PP2361464_1

Prix du projet : Maison avec Terrain

prix 291 100 €

  • 5 pièces
  • 3 chambres
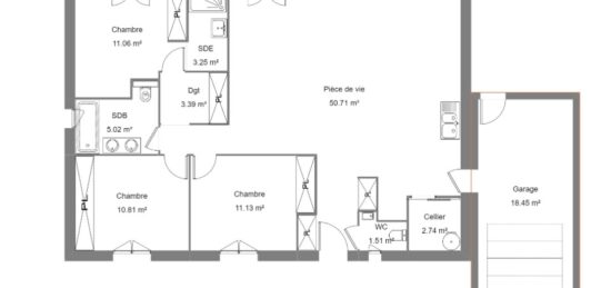
  • Surface maison 95 m2

Montignargues : maison F5 (95 m²) en vente
IDÉALEMENT SITUÉE - MAISON 5 PIÈCES NEUVE
À vendre : située à 43 km de la mer Méditerranée et à deux pas de Nîmes, venez découvrir, idéalement située dans Montignargues (30190), cette maison de 5 pièces de 95 m² et de 380 m² de terrain.
Cette maison possède 2 niveaux. Elle comporte trois chambres, une cuisine et une salle de bains. La maison est neuve.
Cette maison se trouve dans un quartier convoité. On y trouve une école élémentaire. Côté transports, il y a quatre gares à moins de 10 minutes en voiture. Il y a un accès à la nationale N106 à 5 km.
Son prix de vente est de 291 100 €.
Contactez Pascale PIEL (tél : O6-O1-26-64-83) pour obtenir de plus amples renseignements sur la maison, sur les modalités de vente ou sur les démarches à suivre. Maisons Balency Uzès est là pour vous accompagner dans tous vos projets immobiliers.

Mentions légales

Terrain proposé par un partenaire foncier selon disponibilités et autorisation de publicité au prix de 92 900 €. Hors droit d'enregistrement et frais de notaire. Terrain + Maison proposés au prix de 198 200 € (Hors branchements et raccordements, papiers peints, peintures, revêtement de sol dans les chambres. Tarif modifiable sans préavis). Etiquette énergie : A. Différents modèles disponibles pour ce terrain. Assurances et garanties du constructeur (RC professionnelle, décennale, dommage ouvrage, garantie de remboursement de l'acompte, livraison à prix et délai convenu) : https://www.maisons-balency.fr/informations-legales/. HEXAOM Services est enregistré auprès de l'ORIAS en tant que Courtier en financement, Niveau 1, sous le numéro 14001345.

Contactez l'agence de Uzès

04 66 57 25 45

    * Champs obligatoires

    Vos informations sont traitées par HEXAOM et transmises à un conseiller commercial qui vous contactera afin de répondre à votre demande. Les plans et images présentés sur notre site sont la propriété d’HEXAOM et ne peuvent pas être reproduits sans son accord. Pour retrouver notre politique de protection des données personnelles et exercer vos droits conformément à la « loi informatique et liberté » cliquez-ici.