Maison neuve à
Montigny (76380) Référence : MJ2349650_4

Prix du projet : Maison avec Terrain

prix 380 500 €

  • 4 pièces
  • 3 chambres
  • Surface maison 120 m2

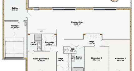
Maison F4 (120 m²) en vente à Montigny
QUARTIER RECHERCHÉ - MAISON 4 PIÈCES NEUVE
En vente : localisée à quelques kilomètres de Rouen, dans un secteur recherché de Montigny (76380), notre agence Maisons Balency Boos est heureuse de vous présenter cette maison de 4 pièces de plain-pied de 120 m² et de 737 m² de terrain.
Elle inclut trois chambres, une cuisine et deux salles de bains. Cette maison est neuve.
Cette maison se trouve dans un quartier attractif. On y trouve une école élémentaire. Niveau transports en commun, il y a quatre gares à moins de 10 minutes en voiture. L'autoroute A150 et les nationales N338, N28 et N138 sont accessibles à moins de 10 km. On trouve un tennis, deux commerces et une épicerie dans les environs.
Elle est proposée à l'achat pour 380 500 €.
Contactez Michael JOURDON (06.43.05.84.44) pour toute information sur la propriété, sur les modalités de vente ou sur les démarches à suivre. Faites de vos projets immobiliers une réalité avec Maisons Balency Boos.

Annonce proposée par un Agent Commercial Partenaire.

Mentions légales

Terrain proposé par un partenaire foncier selon disponibilités et autorisation de publicité au prix de 149 000 €. Hors droit d'enregistrement et frais de notaire. Maison proposée, avec un contrat de construction de maison individuelle, dans le cadre de la loi du 19/12/1990, au prix de 231 500 € (Hors branchements et raccordements, papiers peints, peintures, revêtement de sol dans les chambres, qui sont chiffrés dans les travaux qui restent à charge du client. Tarif modifiable sans préavis). Étiquette énergie : A. Différents modèles disponibles pour ce terrain. Assurances et garanties du constructeur comprises (RC professionnelle, décennale, dommage ouvrage).

Contactez l'agence de Boos

02 35 80 66 66

    * Champs obligatoires

    Vos informations sont traitées par HEXAOM et transmises à un conseiller commercial qui vous contactera afin de répondre à votre demande. Les plans et images présentés sur notre site sont la propriété d’HEXAOM et ne peuvent pas être reproduits sans son accord. Pour retrouver notre politique de protection des données personnelles et exercer vos droits conformément à la « loi informatique et liberté » cliquez-ici.