Maison neuve à
Montigny (76380) Référence : MJ2349650_8

Prix du projet : Maison avec Terrain

prix 499 000 €

  • 7 pièces
  • 5 chambres
  • Surface maison 170 m2

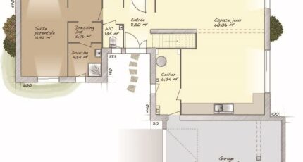
Montigny : maison de 7 pièces (170 m²) en vente
QUARTIER RECHERCHÉ - MAISON 7 PIÈCES NEUVE
À deux pas de Rouen, votre agence Maisons Balency Boos est heureuse de vous présenter en vente, située dans un secteur recherché de Montigny (76380), cette maison de 7 pièces de plain-pied de 170 m².
Elle offre cinq chambres, une cuisine et trois salles de bains. La maison est neuve.
Le terrain du bien s'étend sur 737 m².
Cette maison est située dans un quartier attractif. Une école élémentaire y est implantée. Niveau transports en commun, il y a quatre gares à moins de 10 minutes en voiture. L'autoroute A150 et les nationales N338, N28 et N138 sont accessibles à moins de 10 km. On trouve un tennis, deux commerces et une épicerie à proximité du logement.
Son prix de vente est de 499 000 €.
N'hésitez pas à prendre contact avec Michael JOURDON (06.43.05.84.44) pour obtenir de plus amples informations sur la maison, sur les modalités de vente ou sur les démarches à suivre. Maisons Balency Boos vous accompagne à toutes les étapes de l'achat et dans tous vos projets immobiliers.

Annonce proposée par un Agent Commercial Partenaire.

Mentions légales

Terrain proposé par un partenaire foncier selon disponibilités et autorisation de publicité au prix de 149 000 €. Hors droit d'enregistrement et frais de notaire. Maison proposée, avec un contrat de construction de maison individuelle, dans le cadre de la loi du 19/12/1990, au prix de 350 000 € (Hors branchements et raccordements, papiers peints, peintures, revêtement de sol dans les chambres, qui sont chiffrés dans les travaux qui restent à charge du client. Tarif modifiable sans préavis). Étiquette énergie : A. Différents modèles disponibles pour ce terrain. Assurances et garanties du constructeur comprises (RC professionnelle, décennale, dommage ouvrage).

Contactez l'agence de Boos

02 35 80 66 66

    * Champs obligatoires

    Vos informations sont traitées par HEXAOM et transmises à un conseiller commercial qui vous contactera afin de répondre à votre demande. Les plans et images présentés sur notre site sont la propriété d’HEXAOM et ne peuvent pas être reproduits sans son accord. Pour retrouver notre politique de protection des données personnelles et exercer vos droits conformément à la « loi informatique et liberté » cliquez-ici.