Maison neuve à
Montigny (76380) Référence : RC2456520_2

Prix du projet : Maison avec Terrain

prix 295 881 €

  • 6 pièces
  • 4 chambres
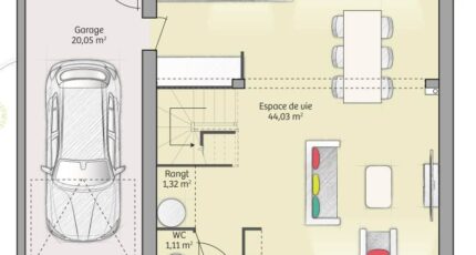
  • Surface maison 91 m2

A construire : maison F6 (91 m²) à Montigny
IDÉALEMENT SITUÉE - MAISON 6 PIÈCES NEUVE
En vente à deux pas de Rouen, nous sommes ravis de vous présenter cette maison de 6 pièces de 91 m² et de 737 m² de terrain idéalement située dans Montigny (76380). Elle dispose de quatre chambres, d'une cuisine et d'une salle de bains.
Il s'agit d'une maison de 2 niveaux. Elle est neuve.
Cette maison est située dans un secteur recherché. Une école élémentaire y est implantée. Côté transports, il y a quatre gares à moins de 10 minutes en voiture. L'autoroute A150 et les nationales N338, N28 et N138 sont accessibles à moins de 10 km. On trouve un tennis et une épicerie à proximité du bien.
Son prix de vente est de 295 881 €.
Prenez contact avec Célia RENIER (07-62-90-87-77) pour obtenir de plus amples renseignements sur la maison ou sur les modalités de vente.

Annonce proposée par un Agent Commercial Partenaire.

Mentions légales

Terrain proposé par un partenaire foncier selon disponibilités et autorisation de publicité au prix de 144 000 €. Hors droit d'enregistrement et frais de notaire. Terrain + Maison proposés au prix de 295 881 € (Hors branchements et raccordements, papiers peints, peintures, revêtement de sol dans les chambres. Tarif modifiable sans préavis). Etiquette énergie : A. Différents modèles disponibles pour ce terrain. Assurances et garanties du constructeur (RC professionnelle, décennale, dommage ouvrage, garantie de remboursement de l'acompte, livraison à prix et délai convenu) : https://www.maisons-balency.fr/informations-legales/. HEXAOM Services est enregistré auprès de l'ORIAS en tant que Courtier en financement, Niveau 1, sous le numéro 14001345.

Contactez l'agence de Boos

02 35 80 66 66

    * Champs obligatoires

    Vos informations sont traitées par HEXAOM et transmises à un conseiller commercial qui vous contactera afin de répondre à votre demande. Les plans et images présentés sur notre site sont la propriété d’HEXAOM et ne peuvent pas être reproduits sans son accord. Pour retrouver notre politique de protection des données personnelles et exercer vos droits conformément à la « loi informatique et liberté » cliquez-ici.