Maison neuve à
Montigny (76380) Référence : RC2456520_4

Prix du projet : Maison avec Terrain

prix 344 396 €

  • 6 pièces
  • 4 chambres
  • Surface maison 98 m2

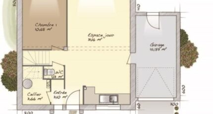
Montigny : maison F6 (98 m²) à construire.
IDÉALEMENT SITUÉE - MAISON 6 PIÈCES NEUVE
En vente à deux pas de Rouen, nous vous proposons cette maison de 6 pièces de 98 m² idéalement située dans Montigny (76380). Elle se divise en quatre chambres, une cuisine et une salle de bains.
Le terrain de cette maison est de 737 m².
C'est une maison de 2 niveaux. Elle est neuve.
La maison se trouve dans un quartier attractif. On y trouve une école élémentaire. Côté transports, il y a quatre gares à moins de 10 minutes en voiture. L'autoroute A150 et les nationales N338, N28 et N138 sont accessibles à moins de 10 km. On trouve un tennis et une épicerie à quelques minutes à peine.
Elle est proposée à l'achat pour 344 396 €.
Prenez contact avec notre agence (RENIER Célia : 07-62-90-87-77) pour tout renseignement sur la maison.

Annonce proposée par un Agent Commercial Partenaire.

Mentions légales

Terrain proposé par un partenaire foncier selon disponibilités et autorisation de publicité au prix de 144 000 €. Hors droit d'enregistrement et frais de notaire. Terrain + Maison proposés au prix de 344 396 € (Hors branchements et raccordements, papiers peints, peintures, revêtement de sol dans les chambres. Tarif modifiable sans préavis). Etiquette énergie : A. Différents modèles disponibles pour ce terrain. Assurances et garanties du constructeur (RC professionnelle, décennale, dommage ouvrage, garantie de remboursement de l'acompte, livraison à prix et délai convenu) : https://www.maisons-balency.fr/informations-legales/. HEXAOM Services est enregistré auprès de l'ORIAS en tant que Courtier en financement, Niveau 1, sous le numéro 14001345.

Contactez l'agence de Boos

02 35 80 66 66

    * Champs obligatoires

    Vos informations sont traitées par HEXAOM et transmises à un conseiller commercial qui vous contactera afin de répondre à votre demande. Les plans et images présentés sur notre site sont la propriété d’HEXAOM et ne peuvent pas être reproduits sans son accord. Pour retrouver notre politique de protection des données personnelles et exercer vos droits conformément à la « loi informatique et liberté » cliquez-ici.