Maison neuve à
Montigny-sur-Loing
(77690) Référence :
KM2449695_2
Prix du projet : Maison avec Terrain
prix 520 000 €
- 7 pièces
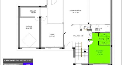
- 4 chambres
- Surface maison 160 m2
Opportunité foncière à Montigny-sur-Loing - Cadre de vie privilégié Avec cet exemple de Maisons BALENCY Agence d'Ormoy
Situé dans un environnement calme et recherché, ce terrain à bâtir développe une surface de 656 m² avec une façade linéaire de 19,50 ml.
Le village de Montigny-sur-Loing offre un cadre de vie idéal avec toutes les commodités à pied : écoles, commerces de proximité et services médicaux. La gare (Ligne R - Paris Gare de Lyon en 55 min) et l'accès rapide à l'autoroute A6 facilitent vos déplacements quotidiens. Profitez également de la proximité immédiate de la forêt de Fontainebleau et du Loing pour vos loisirs.
En tant qu'expert Maisons Balency (Groupe Hexaôm), je vous accompagne dans l'étude du PLU et la conception de votre projet sur-mesure avec plans 2D et insertions 3D réalistes.
Prix terrain : 98 000 €
Étude globale et chiffrage précis (terrain + construction + frais) disponibles sur rendez-vous.
Annonce proposée par un Agent Commercial Partenaire.
Mentions légales
Terrain proposé par un partenaire foncier selon disponibilités et autorisation de publicité au prix de 98 000 €. Hors droit d'enregistrement et frais de notaire. Terrain + Maison proposés au prix de 520 000 € (Hors branchements et raccordements, papiers peints, peintures, revêtement de sol dans les chambres. Tarif modifiable sans préavis). Etiquette énergie : A. Différents modèles disponibles pour ce terrain. Assurances et garanties du constructeur (RC professionnelle, décennale, dommage ouvrage, garantie de remboursement de l'acompte, livraison à prix et délai convenu) : https://www.maisons-balency.fr/informations-legales/. HEXAOM Services est enregistré auprès de l'ORIAS en tant que Courtier en financement, Niveau 1, sous le numéro 14001345.Agence Maisons Balency de Ormoy (91540)
- Téléphone :
- 09 67 70 15 81
- Adressse :
- 23 chemin de Tournenfils - 1er étage
91540 Ormoy, France
