Maison neuve à
Montpellier
(34000) Référence :
CJ2355942_1
Prix du projet : Maison avec Terrain
prix 890 000 €
- 6 pièces
- 4 chambres
- Surface maison 170 m2
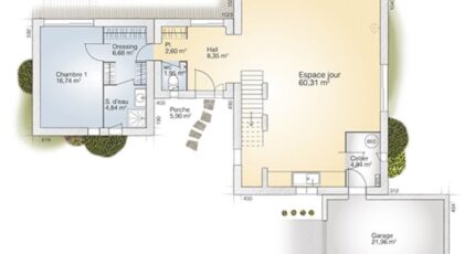
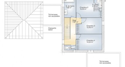
VENTE : maison de 6 pièces (170 m²) à Montpellier
EMPLACEMENT PRIVILÉGIÉ - MAISON 6 PIÈCES NEUVE
À vendre à 9 km de la côte méditerranéenne, votre agence Maisons Balency Castries est heureuse de vous proposer cette maison de 6 pièces de 170 m² bénéficiant d'un emplacement d'exception dans Montpellier (34000).
Cette maison possède 2 niveaux. Elle dispose de quatre chambres, d'une cuisine et de deux salles de bains. La maison est neuve.
Le terrain du bien s'étend sur 500 m².
Cette maison se trouve dans un secteur attractif. Il y a tous les types d'établissements scolaires (de la maternelle au lycée) à moins de 10 minutes à pied, tout comme trois crèches. Niveau transports, on trouve quatre gares à moins de 10 minutes en voiture. L'autoroute A709 et les nationales N109 et N113 sont accessibles à moins de 9 km. Il y a deux bassins de natation, un tennis, des commerces, des boulangeries, trois supermarchés, deux bureaux de poste et des boucheries-charcuteries à proximité.
Elle est à vendre pour la somme de 890 000 €.
N'hésitez pas à prendre contact avec Cédric (06-30-92-83-25) pour toute question sur la maison, sur les modalités de vente et sur les démarches à suivre. Donnez vie à vos projets immobiliers avec Maisons Balency Castries.
Mentions légales
Terrain proposé par un partenaire foncier selon disponibilités et autorisation de publicité au prix de 380 000 €. Hors droit d'enregistrement et frais de notaire. Maison proposée, avec un contrat de construction de maison individuelle, dans le cadre de la loi du 19/12/1990, au prix de 510 000 € (Hors branchements et raccordements, papiers peints, peintures, revêtement de sol dans les chambres, qui sont chiffrés dans les travaux qui restent à charge du client. Tarif modifiable sans préavis). Étiquette énergie : A. Différents modèles disponibles pour ce terrain. Assurances et garanties du constructeur comprises (RC professionnelle, décennale, dommage ouvrage).Agence Maisons Balency de Castries (34160)
- Téléphone :
- 04 99 62 92 10
- Adressse :
- 138, avenue de la Royale
34160 Castries, France
