Maison neuve à
Montpellier
(34000) Référence :
CJ2355942_3
Prix du projet : Maison avec Terrain
prix 820 000 €
- 6 pièces
- 4 chambres
- Surface maison 170 m2
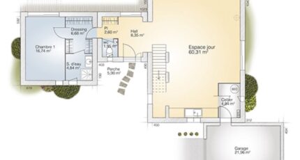
VENTE d'une maison F6 (170 m²) à Montpellier
EMPLACEMENT PRIVILÉGIÉ - MAISON 6 PIÈCES NEUVE
À vendre à 9 km de la mer Méditerranée, votre agence Maisons Balency Castries est heureuse de vous présenter, bénéficiant d'un emplacement d'exception dans Montpellier (34000), cette maison de 6 pièces de 170 m² et de 500 m² de terrain. Elle offre quatre chambres, une cuisine et trois salles de bains.
Cette maison compte 2 niveaux. Elle est neuve.
La maison se situe dans un secteur recherché. Des écoles (de la maternelle au lycée) se trouvent à moins de 10 minutes à pied, tout comme trois crèches. Côté transports, il y a quatre gares à moins de 10 minutes en voiture. L'autoroute A709 et les nationales N109 et N113 sont accessibles à moins de 9 km. On trouve deux bassins de natation, un tennis, des commerces, des boulangeries, trois supermarchés, une poissonnerie et deux supérettes à quelques minutes.
Elle est à vendre pour la somme de 820 000 €.
Contactez Cédric (06-30-92-83-25) pour toute information sur la maison, sur les démarches à suivre ou sur les modalités de vente. Maisons Balency Castries est là pour vous accompagner dans tous vos projets immobiliers.
Mentions légales
Terrain proposé par un partenaire foncier selon disponibilités et autorisation de publicité au prix de 380 000 €. Hors droit d'enregistrement et frais de notaire. Maison proposée, avec un contrat de construction de maison individuelle, dans le cadre de la loi du 19/12/1990, au prix de 440 000 € (Hors branchements et raccordements, papiers peints, peintures, revêtement de sol dans les chambres, qui sont chiffrés dans les travaux qui restent à charge du client. Tarif modifiable sans préavis). Étiquette énergie : A. Différents modèles disponibles pour ce terrain. Assurances et garanties du constructeur comprises (RC professionnelle, décennale, dommage ouvrage).Agence Maisons Balency de Castries (34160)
- Téléphone :
- 04 99 62 92 10
- Adressse :
- 138, avenue de la Royale
34160 Castries, France
