Maison neuve à
Montsoult
(95560) Référence :
MU2252738_4
Prix du projet : Maison avec Terrain
prix 384 900 €
- 5 pièces
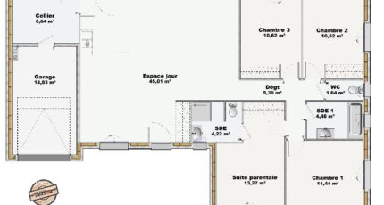
- 4 chambres
- Surface maison 113 m2
Montsoult : maison T5 (113 m²) à vendre
IDÉALEMENT SITUÉE - MAISON 5 PIÈCES NEUVE
À quelques minutes du Transilien H (gare de Montsoult-Maffliers, 25 min de Paris), nous vous proposons cette maison de 5 pièces de plain-pied de 113 m² idéalement située dans Montsoult (95560).
Elle est composée de quatre chambres, d'une cuisine et de deux salles de bains. La maison est neuve.
Le terrain du bien s'étend sur 545 m².
Cette maison se trouve dans un secteur attractif. Des établissements scolaires du primaire et du secondaire sont implantés à moins de 10 minutes à pied, tout comme une crèche. Côté transports, il y a la gare Montsoult-Maffliers à proximité. On trouve une bibliothèque, deux tennis, deux commerces, deux boulangeries, une épicerie, une supérette et une boucherie-charcuterie dans les environs.
Elle est proposée à l'achat pour 384 900 €.
N'hésitez pas à prendre contact avec notre agence (Mylann URBANSKY : 06-23-32-28-23) pour tout renseignement sur la maison ou sur les modalités de vente. Concrétisez vos projets immobiliers avec Maisons Balency Pierrelaye.
Annonce proposée par un Agent Commercial Partenaire.
Mentions légales
Terrain proposé par un partenaire foncier selon disponibilités et autorisation de publicité au prix de 190 000 €. Hors droit d'enregistrement et frais de notaire. Maison proposée, avec un contrat de construction de maison individuelle, dans le cadre de la loi du 19/12/1990, au prix de 194 900 € (Hors branchements et raccordements, papiers peints, peintures, revêtement de sol dans les chambres, qui sont chiffrés dans les travaux qui restent à charge du client. Tarif modifiable sans préavis). Étiquette énergie : A. Différents modèles disponibles pour ce terrain. Assurances et garanties du constructeur comprises (RC professionnelle, décennale, dommage ouvrage).Agence Maisons Balency de Baillet-en-France (95560)
- Téléphone :
- 01 34 46 05 23
- Adressse :
- 81 rue de Paris
95560 Baillet-en-France, France
