Maison neuve à
Montsoult
(95560) Référence :
MU2298878_7
Prix du projet : Maison avec Terrain
prix 340 000 €
- 5 pièces
- 3 chambres
- Surface maison 90 m2
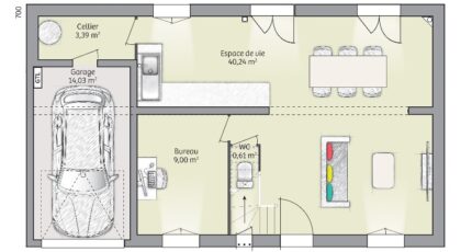
Maison de 5 pièces (90 m²) à vendre à Montsoult
IDÉALEMENT SITUÉE - MAISON 5 PIÈCES NEUVE
À vendre : à côté du Transilien H (gare de Montsoult-Maffliers, 25 min de Paris), notre agence Maisons Balency Baillet-en-France est heureuse de vous proposer, idéalement située dans Montsoult (95560), cette maison de 5 pièces de 90 m² et de 545 m² de terrain. Son intérieur dispose de trois chambres, d'une cuisine et d'une salle de bains.
Il s'agit d'une maison de 2 niveaux. Elle est neuve.
Cette maison se trouve dans un secteur prisé. Il y a des établissements scolaires (de la maternelle au lycée) à moins de 10 minutes à pied et une structure d'accueil pour les enfants en bas âge. Niveau transports, on trouve la gare Montsoult-Maffliers juste à côté. Il y a une bibliothèque, deux tennis, deux commerces, deux boulangeries, une boucherie-charcuterie, une épicerie et un bureau de poste à quelques minutes.
Elle est proposée à l'achat pour 340 000 €.
N'hésitez pas à prendre contact avec notre constructeur (Mylann URBANSKY : 06-23-32-28-23) pour tout renseignement sur la maison.
Annonce proposée par un Agent Commercial Partenaire.
Mentions légales
Terrain proposé par un partenaire foncier selon disponibilités et autorisation de publicité au prix de 180 000 €. Hors droit d'enregistrement et frais de notaire. Maison proposée, avec un contrat de construction de maison individuelle, dans le cadre de la loi du 19/12/1990, au prix de 160 000 € (Hors branchements et raccordements, papiers peints, peintures, revêtement de sol dans les chambres, qui sont chiffrés dans les travaux qui restent à charge du client. Tarif modifiable sans préavis). Étiquette énergie : A. Différents modèles disponibles pour ce terrain. Assurances et garanties du constructeur comprises (RC professionnelle, décennale, dommage ouvrage).Agence Maisons Balency de Baillet-en-France (95560)
- Téléphone :
- 01 34 46 05 23
- Adressse :
- 81 rue de Paris
95560 Baillet-en-France, France
