Maison neuve à
Veneux-les-Sablons
(77250) Référence :
MU2354811_5
Prix du projet : Maison avec Terrain
prix 271 000 €
- 5 pièces
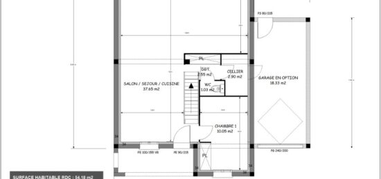
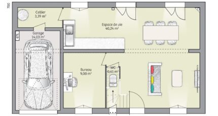
- 3 chambres
- Surface maison 90 m2
Maison de 5 pièces (90 m²) à vendre à Moret-Loing-et-Orvanne
IDÉALEMENT SITUÉE - MAISON 5 PIÈCES NEUVE
À vendre : proche du Transilien R (gare de Saint-Mammès, 50 min de Paris), laissez vous charmer par cette maison de 5 pièces de 90 m² et de 406 m² de terrain idéalement située dans Moret-Loing-et-Orvanne (77250). Son intérieur propose trois chambres, une cuisine et une salle de bains.
C'est une maison de 2 niveaux. Elle est neuve.
La maison est située dans un secteur convoité. L'École Maternelle les Lilas est implantée à moins de 10 minutes à pied. Niveau transports en commun, on trouve 10 gares à moins de 10 minutes en voiture. Il y a un tennis et une bibliothèque dans les environs.
Son prix de vente est de 271 000 €.
Contactez Mylann URBANSKY (06-23-32-28-23) pour plus d'informations sur la maison ou sur les modalités de vente. Concrétisez vos projets immobiliers avec Maisons Balency Baillet-en-France.
Annonce proposée par un Agent Commercial Partenaire.
Mentions légales
Terrain proposé par un partenaire foncier selon disponibilités et autorisation de publicité au prix de 110 900 €. Hors droit d'enregistrement et frais de notaire. Terrain + Maison proposés au prix de 271 000 € (Hors branchements et raccordements, papiers peints, peintures, revêtement de sol dans les chambres. Tarif modifiable sans préavis). Etiquette énergie : A. Différents modèles disponibles pour ce terrain. Assurances et garanties du constructeur (RC professionnelle, décennale, dommage ouvrage, garantie de remboursement de l'acompte, livraison à prix et délai convenu) : https://www.maisons-balency.fr/informations-legales/. HEXAOM Services est enregistré auprès de l'ORIAS en tant que Courtier en financement, Niveau 1, sous le numéro 14001345.Agence Maisons Balency de Baillet-en-France (95560)
- Téléphone :
- 01 34 46 05 23
- Adressse :
- 81 rue de Paris
95560 Baillet-en-France, France
