Maison neuve à
Veneux-les-Sablons
(77250) Référence :
AM2413745_3
Prix du projet : Maison avec Terrain
prix 290 964 €
- 5 pièces
- 3 chambres
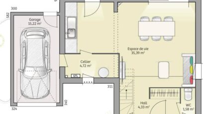
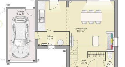
- Surface maison 90 m2
PROJET TERRAIN + MAISON + NOTAIRE + VIABILISATION = 290 964€
À côté de la gare de Veneux Les Sablons (Paris à 50 min avec le Transilien R), à vendre à Moret-Loing-et-Orvanne (77250), découvrez cette maison de 5 pièces de 90 m² et de 390 m² de terrain.
Cette maison compte 2 niveaux. Elle compte trois chambres, une cuisine et une salle de bains. Cette maison est neuve.
L'École Maternelle les Lilas est implantée à moins de 10 minutes à pied. Niveau transports en commun, on trouve 10 gares à moins de 10 minutes en voiture. Il y a un tennis et une bibliothèque dans les environs.
Elle est à vendre pour la somme de 290 964 €.
N'hésitez pas à prendre contact avec Arnaud MOINE (06-40-48-40-55) pour obtenir de plus amples renseignements sur cette maison, sur les démarches à suivre ou sur les modalités de vente.
Annonce proposée par un Agent Commercial Partenaire.
Mentions légales
Terrain proposé par un partenaire foncier selon disponibilités et autorisation de publicité au prix de 95 000 €. Hors droit d'enregistrement et frais de notaire. Terrain + Maison proposés au prix de 290 964 € (Hors branchements et raccordements, papiers peints, peintures, revêtement de sol dans les chambres. Tarif modifiable sans préavis). Etiquette énergie : A. Différents modèles disponibles pour ce terrain. Assurances et garanties du constructeur (RC professionnelle, décennale, dommage ouvrage, garantie de remboursement de l'acompte, livraison à prix et délai convenu) : https://www.maisons-balency.fr/informations-legales/. HEXAOM Services est enregistré auprès de l'ORIAS en tant que Courtier en financement, Niveau 1, sous le numéro 14001345.Agence Maisons Balency de Moret-sur-Loing (77250)
- Téléphone :
- 09 78 81 26 91
- Adressse :
- 96 avenue de Fontainebleau
77250 Moret-sur-Loing, France
