Maison neuve à
Morgny-la-Pommeraye (76750) Référence : MJ2310797_2

Prix du projet : Maison avec Terrain

prix 279 000 €

  • 5 pièces
  • 4 chambres
  • Surface maison 113 m2

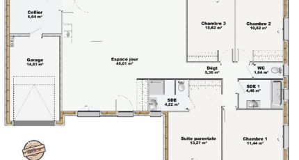
VENTE : maison T5 (113 m²) à Morgny-la-Pommeraye
IDÉALEMENT SITUÉE - MAISON 5 PIÈCES NEUVE
À vendre : à quelques kilomètres de Rouen, venez découvrir cette maison de 5 pièces de plain-pied de 113 m² et de 1 123 m² de terrain, idéalement située dans Morgny-la-Pommeraye (76750). Son intérieur compte quatre chambres, une cuisine et deux salles de bains.
La maison est neuve.
Cette maison se situe dans un secteur prisé. L'École Primaire les Trois Hameaux y est implantée. Côté transports, on trouve les gares Morgny-la-Pommeraye, Longuerue-Vieux-Manoir et Saint-Martin-du-Vivier à moins de 10 minutes en voiture. L'autoroute A28 et la nationale N28 sont accessibles à moins de 8 km. Il y a une bibliothèque et une épicerie à proximité.
Elle est à vendre pour la somme de 279 000 €.
N'hésitez pas à prendre contact avec notre agence (JOURDON Michael : 06.43.05.84.44) pour tout renseignement sur la maison ou sur les modalités de vente. Michael est là pour vous accompagner à toutes les étapes de l'achat.

Annonce proposée par un Agent Commercial Partenaire.

Mentions légales

Terrain proposé par un partenaire foncier selon disponibilités et autorisation de publicité au prix de 81 000 €. Hors droit d'enregistrement et frais de notaire. Terrain + Maison proposés au prix de 198 000 € (Hors branchements et raccordements, papiers peints, peintures, revêtement de sol dans les chambres. Tarif modifiable sans préavis). Etiquette énergie : A. Différents modèles disponibles pour ce terrain. Assurances et garanties du constructeur (RC professionnelle, décennale, dommage ouvrage, garantie de remboursement de l'acompte, livraison à prix et délai convenu) : https://www.maisons-balency.fr/informations-legales/. HEXAOM Services est enregistré auprès de l'ORIAS en tant que Courtier en financement, Niveau 1, sous le numéro 14001345.

Contactez l'agence de Boos

02 35 80 66 66

    * Champs obligatoires

    Vos informations sont traitées par HEXAOM et transmises à un conseiller commercial qui vous contactera afin de répondre à votre demande. Les plans et images présentés sur notre site sont la propriété d’HEXAOM et ne peuvent pas être reproduits sans son accord. Pour retrouver notre politique de protection des données personnelles et exercer vos droits conformément à la « loi informatique et liberté » cliquez-ici.