Maison neuve à
Morgny-la-Pommeraye (76750) Référence : SEMA9067_10

Prix du projet : Maison avec Terrain

prix 449 000 €

  • 8 pièces
  • 5 chambres
  • Surface maison 200 m2

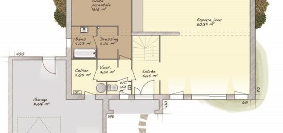
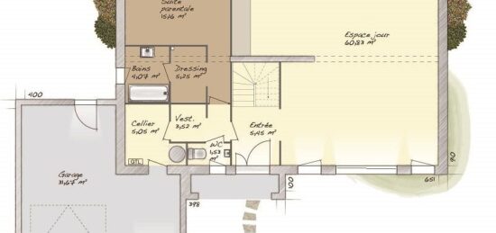
Maison de 8 pièces (200 m²) à vendre à Morgny-la-Pommeraye
PROCHE DE ROUEN - MAISON 8 PIÈCES NEUVE
À vendre : à deux pas de Rouen, à Morgny-la-Pommeraye (76750), Maisons Balency Boos vous propose cette maison de 8 pièces de 200 m².
Cette maison comporte 2 niveaux. Elle est composée de cinq chambres, d'une cuisine et de deux salles de bains. La maison est neuve.
Le terrain de la propriété est de 1 100 m².
L'École Primaire les Trois Hameaux est implantée dans la commune. Côté transports, il y a les gares Morgny-la-Pommeraye, Longuerue-Vieux-Manoir et Saint-Martin-du-Vivier à moins de 10 minutes en voiture. L'autoroute A28 et la nationale N28 sont accessibles à moins de 8 km. On trouve une bibliothèque et une épicerie à quelques minutes.
Elle est à vendre pour la somme de 449 000 €.
Prenez contact avec notre agence (Sébastien MASSON : 06-23-38-14-17) pour obtenir de plus amples renseignements sur ce bien, sur les modalités de vente ou sur les démarches à suivre. Maisons Balency Boos est là pour vous accompagner à toutes les étapes de l'achat.

Annonce proposée par un Agent Commercial Partenaire.

Mentions légales

Terrain proposé par un partenaire foncier selon disponibilités et autorisation de publicité au prix de 81 000 €. Hors droit d'enregistrement et frais de notaire. Terrain + Maison proposés au prix de 449 000 € (Hors branchements et raccordements, papiers peints, peintures, revêtement de sol dans les chambres. Tarif modifiable sans préavis). Etiquette énergie : A. Différents modèles disponibles pour ce terrain. Assurances et garanties du constructeur (RC professionnelle, décennale, dommage ouvrage, garantie de remboursement de l'acompte, livraison à prix et délai convenu) : https://www.maisons-balency.fr/informations-legales/. HEXAOM Services est enregistré auprès de l'ORIAS en tant que Courtier en financement, Niveau 1, sous le numéro 14001345.

Contactez l'agence de Boos

02 35 80 66 66

    * Champs obligatoires

    Vos informations sont traitées par HEXAOM et transmises à un conseiller commercial qui vous contactera afin de répondre à votre demande. Les plans et images présentés sur notre site sont la propriété d’HEXAOM et ne peuvent pas être reproduits sans son accord. Pour retrouver notre politique de protection des données personnelles et exercer vos droits conformément à la « loi informatique et liberté » cliquez-ici.