Maison neuve à
Morgny-la-Pommeraye (76750) Référence : SEMA9067_11

Prix du projet : Maison avec Terrain

prix 411 000 €

  • 7 pièces
  • 5 chambres
  • Surface maison 170 m2

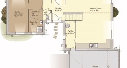
Morgny-la-Pommeraye : maison F7 (170 m²) en vente
PROCHE DE ROUEN - MAISON 7 PIÈCES NEUVE
À vendre : à deux pas de Rouen, découvrez cette maison de 7 pièces de plain-pied de 170 m² et de 1 100 m² de terrain à Morgny-la-Pommeraye (76750).
Conçue de plain-pied, elle inclut cinq chambres, une cuisine et trois salles de bains. Cette maison est neuve.
L'École Primaire les Trois Hameaux est implantée dans la commune. Côté transports, il y a les gares Morgny-la-Pommeraye, Longuerue-Vieux-Manoir et Saint-Martin-du-Vivier à moins de 10 minutes en voiture. L'autoroute A28 et la nationale N28 sont accessibles à moins de 8 km. On trouve une bibliothèque et une épicerie dans les environs.
Son prix de vente est de 411 000 €.
N'hésitez pas à prendre contact avec notre agence (Sébastien MASSON : 06-23-38-14-17) pour tout renseignement sur la maison. Maisons Balency Boos vous accompagne à toutes les étapes de votre projet et dans toutes vos démarches.

Annonce proposée par un Agent Commercial Partenaire.

Mentions légales

Terrain proposé par un partenaire foncier selon disponibilités et autorisation de publicité au prix de 81 000 €. Hors droit d'enregistrement et frais de notaire. Terrain + Maison proposés au prix de 411 000 € (Hors branchements et raccordements, papiers peints, peintures, revêtement de sol dans les chambres. Tarif modifiable sans préavis). Etiquette énergie : A. Différents modèles disponibles pour ce terrain. Assurances et garanties du constructeur (RC professionnelle, décennale, dommage ouvrage, garantie de remboursement de l'acompte, livraison à prix et délai convenu) : https://www.maisons-balency.fr/informations-legales/. HEXAOM Services est enregistré auprès de l'ORIAS en tant que Courtier en financement, Niveau 1, sous le numéro 14001345.

Contactez l'agence de Boos

02 35 80 66 66

    * Champs obligatoires

    Vos informations sont traitées par HEXAOM et transmises à un conseiller commercial qui vous contactera afin de répondre à votre demande. Les plans et images présentés sur notre site sont la propriété d’HEXAOM et ne peuvent pas être reproduits sans son accord. Pour retrouver notre politique de protection des données personnelles et exercer vos droits conformément à la « loi informatique et liberté » cliquez-ici.