Maison neuve à
Morgny-la-Pommeraye (76750) Référence : SEMA9067_7

Prix du projet : Maison avec Terrain

prix 275 000 €

  • 9 pièces
  • 5 chambres
  • Surface maison 124 m2

Morgny-la-Pommeraye : maison de 9 pièces (124 m²) en vente
MAISON 9 PIÈCES NEUVE - PROCHE DE ROUEN
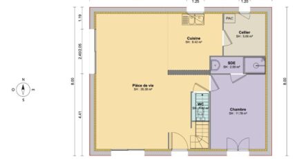
En vente à deux pas de Rouen, à Morgny-la-Pommeraye (76750), nous sommes ravis de vous présenter cette maison de 9 pièces de 124 m² et de 1 100 m² de terrain. Elle inclut cinq chambres, une cuisine et trois salles de bains.
Cette maison possède 2 niveaux. Elle est neuve.
L'École Primaire les Trois Hameaux est implantée dans la commune. Niveau transports en commun, il y a trois gares (Morgny-la-Pommeraye, Longuerue-Vieux-Manoir et Saint-Martin-du-Vivier) à moins de 10 minutes en voiture. L'autoroute A28 et la nationale N28 sont accessibles à moins de 8 km. On trouve une bibliothèque et une épicerie dans les environs.
Elle est proposée à l'achat pour 275 000 €.
Contactez Sébastien MASSON (06-23-38-14-17) pour toute question sur la maison, sur les modalités de vente ou sur les démarches à suivre. Maisons Balency Boos vous accompagne dans tous vos projets immobiliers et dans toutes vos démarches.

Annonce proposée par un Agent Commercial Partenaire.

Mentions légales

Terrain proposé par un partenaire foncier selon disponibilités et autorisation de publicité au prix de 81 000 €. Hors droit d'enregistrement et frais de notaire. Terrain + Maison proposés au prix de 275 000 € (Hors branchements et raccordements, papiers peints, peintures, revêtement de sol dans les chambres. Tarif modifiable sans préavis). Etiquette énergie : A. Différents modèles disponibles pour ce terrain. Assurances et garanties du constructeur (RC professionnelle, décennale, dommage ouvrage, garantie de remboursement de l'acompte, livraison à prix et délai convenu) : https://www.maisons-balency.fr/informations-legales/. HEXAOM Services est enregistré auprès de l'ORIAS en tant que Courtier en financement, Niveau 1, sous le numéro 14001345.

Contactez l'agence de Boos

02 35 80 66 66

    * Champs obligatoires

    Vos informations sont traitées par HEXAOM et transmises à un conseiller commercial qui vous contactera afin de répondre à votre demande. Les plans et images présentés sur notre site sont la propriété d’HEXAOM et ne peuvent pas être reproduits sans son accord. Pour retrouver notre politique de protection des données personnelles et exercer vos droits conformément à la « loi informatique et liberté » cliquez-ici.