Maison neuve à
Mulcent
(78790) Référence :
TD2336203_3
Prix du projet : Maison avec Terrain
prix 482 440 €
- 7 pièces
- 4 chambres
- Surface maison 160 m2
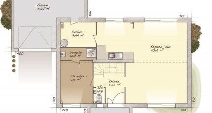
VENTE : maison F7 (160 m²) à Mulcent
IDÉALEMENT SITUÉE - MAISON 7 PIÈCES NEUVE
Au pied du Transilien N (gare de Tacoignières-Richebourg, 50 min de Paris), Maisons Balency Coignières vous propose en vente, idéalement située dans Mulcent (78790), cette maison de 7 pièces de 160 m² et de 854 m² de terrain. Elle propose quatre chambres, une cuisine et deux salles de bains.
Cette maison comporte 2 niveaux. Elle est neuve.
La maison est située dans un quartier convoité. Niveau transports en commun, il y a les gares Tacoignières-Richebourg, Orgerus-Béhoust et Houdan à moins de 10 minutes en voiture. On trouve un commerce dans les environs.
Elle est proposée à l'achat pour 482 440 €.
N'hésitez pas à prendre contact avec notre agence (DUTEURTRE Thibault : 06-23-41-73-81) pour tout renseignement sur la maison. Maisons Balency Coignières vous accompagne dans toutes vos démarches et dans tous vos projets immobiliers.
Annonce proposée par un Agent Commercial Partenaire.
Mentions légales
Terrain proposé par un partenaire foncier selon disponibilités et autorisation de publicité au prix de 120 000 €. Hors droit d'enregistrement et frais de notaire. Maison proposée, avec un contrat de construction de maison individuelle, dans le cadre de la loi du 19/12/1990, au prix de 362 440 € (Hors branchements et raccordements, papiers peints, peintures, revêtement de sol dans les chambres, qui sont chiffrés dans les travaux qui restent à charge du client. Tarif modifiable sans préavis). Étiquette énergie : A. Différents modèles disponibles pour ce terrain. Assurances et garanties du constructeur comprises (RC professionnelle, décennale, dommage ouvrage).Agence Maisons Balency de Coignières (78310)
- Téléphone :
- 01 34 61 42 59
- Adressse :
- Domexpo Ouest
78310 Coignières, France
