Maison neuve à
Mus (30121) Référence : PP2318565_2

Prix du projet : Maison avec Terrain

prix 341 600 €

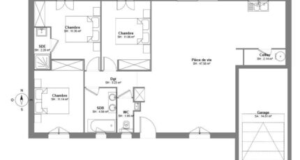
  • 5 pièces
  • 3 chambres
  • Surface maison 95 m2

VENTE d'une maison de 5 pièces (95 m²) à Mus
IDÉALEMENT SITUÉE - MAISON 5 PIÈCES NEUVE
En vente : localisée à 23 km de la côte méditerranéenne et à 30 km de Montpellier, ayez le coup de coeur pour cette maison de 5 pièces de plain-pied de 95 m², idéalement située dans Mus (30121).
Elle inclut trois chambres, une cuisine et deux salles de bains. Cette maison est neuve.
Le terrain du bien s'étend sur 422 m².
La maison se situe dans un secteur attractif. L'École Primaire les Amandiers est implantée à moins de 10 minutes à pied. Niveau transports en commun, on trouve huit gares à moins de 10 minutes en voiture. L'autoroute A9 est accessible à 1 km. Il y a deux commerces, une boulangerie, une épicerie et un bureau de poste à proximité du logement.
Son prix de vente est de 341 600 €.
Prenez contact avec notre agence (Pascale PIEL : O6-O1-26-64-83) pour plus d'informations sur la maison, sur les démarches à suivre et sur les modalités de vente.

Mentions légales

Terrain proposé par un partenaire foncier selon disponibilités et autorisation de publicité au prix de 159 900 €. Hors droit d'enregistrement et frais de notaire. Maison proposée, avec un contrat de construction de maison individuelle, dans le cadre de la loi du 19/12/1990, au prix de 181 700 € (Hors branchements et raccordements, papiers peints, peintures, revêtement de sol dans les chambres, qui sont chiffrés dans les travaux qui restent à charge du client. Tarif modifiable sans préavis). Étiquette énergie : A. Différents modèles disponibles pour ce terrain. Assurances et garanties du constructeur comprises (RC professionnelle, décennale, dommage ouvrage).

Contactez l'agence de Uzès

04 66 57 25 45

    * Champs obligatoires

    Vos informations sont traitées par HEXAOM et transmises à un conseiller commercial qui vous contactera afin de répondre à votre demande. Les plans et images présentés sur notre site sont la propriété d’HEXAOM et ne peuvent pas être reproduits sans son accord. Pour retrouver notre politique de protection des données personnelles et exercer vos droits conformément à la « loi informatique et liberté » cliquez-ici.