Maison neuve à
Nages-et-Solorgues (30114) Référence : JFM2290778_2

Prix du projet : Maison avec Terrain

prix 532 300 €

  • 5 pièces
  • 4 chambres
  • Surface maison 113 m2

VENTE : maison T5 (113 m²) à Nages-et-Solorgues
IDÉALEMENT SITUÉE - MAISON 5 PIÈCES NEUVE
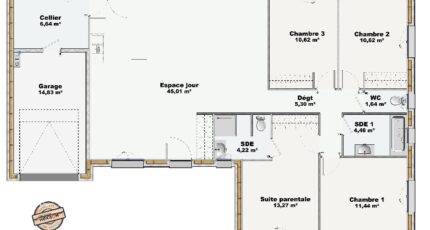
À vendre : à 29 km de la mer Méditerranée et à 10 km de Nîmes, Maisons Balency Uzès vous propose cette maison à ossature bois de 5 pièces de plain-pied de 113 m², idéalement située dans Nages-et-Solorgues (30114).
Elle compte quatre chambres, une cuisine et deux salles de bains. La maison est neuve.
Le terrain de la propriété s'étend sur 968 m² boisé.
Cette maison est située dans un secteur convoité. Une école primaire y est implantée et une structure d'accueil pour les enfants en bas âge. Côté transports en commun, on trouve cinq gares à moins de 10 minutes en voiture. Les autoroutes A9 et A54 et les nationales N113 et N106 sont accessibles à moins de 10 km. Il y a un tennis, une boulangerie et deux commerces dans les environs.
Son prix de vente est de 532 300 €.
Contactez Jean-François 06 62 33 13 00 pour toute information sur la maison, sur les démarches à suivre ou sur les modalités de vente.

Annonce proposée par un Agent Commercial Partenaire.

Mentions légales

Terrain proposé par un partenaire foncier selon disponibilités et autorisation de publicité au prix de 220 000 €. Hors droit d'enregistrement et frais de notaire. Maison proposée, avec un contrat de construction de maison individuelle, dans le cadre de la loi du 19/12/1990, au prix de 312 300 € (Hors branchements et raccordements, papiers peints, peintures, revêtement de sol dans les chambres, qui sont chiffrés dans les travaux qui restent à charge du client. Tarif modifiable sans préavis). Étiquette énergie : A. Différents modèles disponibles pour ce terrain. Assurances et garanties du constructeur comprises (RC professionnelle, décennale, dommage ouvrage).

Contactez l'agence de Uzès

04 66 57 25 45

    * Champs obligatoires

    Vos informations sont traitées par HEXAOM et transmises à un conseiller commercial qui vous contactera afin de répondre à votre demande. Les plans et images présentés sur notre site sont la propriété d’HEXAOM et ne peuvent pas être reproduits sans son accord. Pour retrouver notre politique de protection des données personnelles et exercer vos droits conformément à la « loi informatique et liberté » cliquez-ici.