Maison neuve à
Nanterre
(92000) Référence :
AD2300972_1
Prix du projet : Maison avec Terrain
prix 982 600 €
- 7 pièces
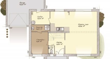
- 4 chambres
- Surface maison 160 m2
Maison T7 (160 m²) à vendre à Nanterre
MAISON 7 PIÈCES NEUVE
En vente : à quelques minutes de la station Nanterre Ville du RER A (10 min de Paris), laissez vous charmer par à Nanterre (92000), cette maison de 7 pièces de 160 m². Elle propose quatre chambres, une cuisine et deux salles de bains.
Le terrain de la propriété s'étend sur 780 m².
C'est une maison de 2 niveaux. Elle est neuve.
Des écoles de tous types (de la maternelle au lycée) sont implantées à moins de 10 minutes à pied, tout comme sept crèches. Niveau transports en commun, il y a la station de RER Nanterre-Ville (ligne A) à proximité. On trouve une bibliothèque, deux tennis, un bassin de natation, des boulangeries, des commerces, des supermarchés, des épiceries et un bureau de poste dans les environs. Enfin, le marché Cité Jolio Curie anime le quartier.
Elle est proposée à l'achat pour 982 600 €.
Contactez Arnaud DUTEURTRE (tél : 06-13-43-01-46) pour plus de renseignements sur la maison. Maisons Balency Coignières vous accompagne dans toutes vos démarches et à toutes les étapes de l'achat.
Annonce proposée par un Agent Commercial Partenaire.
Mentions légales
Terrain proposé par un partenaire foncier selon disponibilités et autorisation de publicité au prix de 595 000 €. Hors droit d'enregistrement et frais de notaire. Maison proposée, avec un contrat de construction de maison individuelle, dans le cadre de la loi du 19/12/1990, au prix de 387 600 € (Hors branchements et raccordements, papiers peints, peintures, revêtement de sol dans les chambres, qui sont chiffrés dans les travaux qui restent à charge du client. Tarif modifiable sans préavis). Étiquette énergie : A. Différents modèles disponibles pour ce terrain. Assurances et garanties du constructeur comprises (RC professionnelle, décennale, dommage ouvrage).Agence Maisons Balency de Coignières (78310)
- Téléphone :
- 01 34 61 42 59
- Adressse :
- Domexpo Ouest
78310 Coignières, France
