Maison neuve à
Nanterre
(92000) Référence :
AD2301005_1
Prix du projet : Maison avec Terrain
prix 1 109 220 €
- 7 pièces
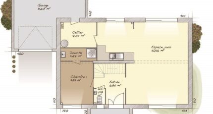
- 4 chambres
- Surface maison 160 m2
Nanterre : maison T7 (160 m²) en vente
MAISON 7 PIÈCES NEUVE
À vendre : à quelques minutes de la station Nanterre Ville du RER A (10 min de Paris), Maisons Balency Coignières vous présente cette maison de 7 pièces de 160 m² à Nanterre (92000). Elle offre quatre chambres, une cuisine et deux salles de bains.
Le terrain de la maison s'étend sur 570 m².
Cette maison possède 2 niveaux. Elle est neuve.
Tous les types d'établissements scolaires (de la maternelle au lycée) sont implantés à moins de 10 minutes à pied, tout comme sept structures d'accueil pour la petite enfance. Niveau transports, il y a la station de RER Nanterre-Ville (ligne A) juste à côté. On trouve une bibliothèque, deux tennis, un bassin de natation, des boulangeries, des commerces, des supermarchés, deux poissonneries et un bureau de poste dans les environs. Enfin, le marché Cité Jolio Curie anime les environs.
Son prix de vente est de 1 109 220 €.
Contactez notre agence (DUTEURTRE Arnaud : 06-13-43-01-46) pour obtenir de plus amples renseignements sur cette maison. Maisons Balency Coignières est là pour vous accompagner dans toutes vos démarches.
Annonce proposée par un Agent Commercial Partenaire.
Mentions légales
Terrain proposé par un partenaire foncier selon disponibilités et autorisation de publicité au prix de 705 000 €. Hors droit d'enregistrement et frais de notaire. Maison proposée, avec un contrat de construction de maison individuelle, dans le cadre de la loi du 19/12/1990, au prix de 404 220 € (Hors branchements et raccordements, papiers peints, peintures, revêtement de sol dans les chambres, qui sont chiffrés dans les travaux qui restent à charge du client. Tarif modifiable sans préavis). Étiquette énergie : A. Différents modèles disponibles pour ce terrain. Assurances et garanties du constructeur comprises (RC professionnelle, décennale, dommage ouvrage).Agence Maisons Balency de Coignières (78310)
- Téléphone :
- 01 34 61 42 59
- Adressse :
- Domexpo Ouest
78310 Coignières, France
