Maison neuve à
Nanterre (92000) Référence : AN2312203_2

Prix du projet : Maison avec Terrain

prix 856 000 €

  • 6 pièces
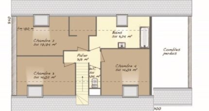
  • 4 chambres
  • Surface maison 117 m2

Opportunité exceptionnelle à saisir ! Projet de construction d'une maison d'exception BALENCY sur mesure

Dans un cadre privilégié, découvrez ce projet unique de construction d'une maison sur mesure, pensée pour allier élégance, confort et prestations haut de gamme. Sur un terrain de 425 m², cette future propriété offrira une surface habitable de 117 m², conçue selon vos envies et vos exigences.

Caractéristiques principales :

- Architecture contemporaine ou classique selon vos préférences
- Matériaux nobles et finitions de qualité supérieure
- Grands volumes lumineux avec baies vitrées et hauteurs sous plafond
- Cuisine équipée haut de gamme ouverte sur un vaste espace de vie
- Suites parentales avec dressing et salle de bain privative
- Espaces personnalisables : bureau, salle de sport, home cinéma...
- Système de chauffage et climatisation gainable pour un confort thermique optimal et une intégration discrète digne d'un palace
- Domotique intégrée pour un confort optimal
- Jardin paysager avec possibilité de piscine, terrasse, pool house...

Localisation idéale :
Située dans un environnement calme et résidentiel, à proximité des commodités, écoles, transports et axes principaux, cette maison incarne le parfait équilibre entre tranquillité et vie active.

Un projet clé en main :
Accompagnement complet par des professionnels reconnus : architectes, artisans, décorateurs. Vous choisissez, nous réalisons.

Pour plus d'informations, merci de nous contacter.

Anda Nistor : 07 81 86 62 91

Annonce proposée par un Agent Commercial Partenaire.

Mentions légales

Terrain proposé par un partenaire foncier selon disponibilités et autorisation de publicité au prix de 495 000 €. Hors droit d'enregistrement et frais de notaire. Maison proposée, avec un contrat de construction de maison individuelle, dans le cadre de la loi du 19/12/1990, au prix de 361 000 € (Hors branchements et raccordements, papiers peints, peintures, revêtement de sol dans les chambres, qui sont chiffrés dans les travaux qui restent à charge du client. Tarif modifiable sans préavis). Étiquette énergie : A. Différents modèles disponibles pour ce terrain. Assurances et garanties du constructeur comprises (RC professionnelle, décennale, dommage ouvrage).

Contactez l'agence de Dammartin-en-Goële

01 60 54 23 04

    * Champs obligatoires

    Vos informations sont traitées par HEXAOM et transmises à un conseiller commercial qui vous contactera afin de répondre à votre demande. Les plans et images présentés sur notre site sont la propriété d’HEXAOM et ne peuvent pas être reproduits sans son accord. Pour retrouver notre politique de protection des données personnelles et exercer vos droits conformément à la « loi informatique et liberté » cliquez-ici.