Maison neuve à
Nassandres (27550) Référence : EL2306511_2

Prix du projet : Maison avec Terrain

prix 256 000 €

  • 6 pièces
  • 4 chambres
  • Surface maison 117 m2

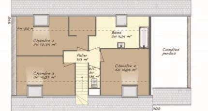
Maison F6 (117 m²) en vente à Nassandres
EMPLACEMENT PRIVILÉGIÉ - MAISON 6 PIÈCES NEUVE
À vendre : à 48 km de la Manche, bénéficiant d'un emplacement d'exception dans Nassandres (27550), nous vous proposons cette maison de 6 pièces de plain-pied de 117 m². Conçue de plain-pied, elle comporte quatre chambres, une cuisine et deux salles de bains.
Le terrain du bien s'étend sur 1 078 m².
Cette maison est neuve.
Cette propriété est située dans un secteur attractif. Il y a l'École Primaire Yann Arthus-Bertrand à moins de 10 minutes à pied. Côté transports en commun, on trouve trois gares (Serquigny, Beaumont-le-Roger et Brionne) à moins de 10 minutes en voiture. L'autoroute A28 est accessible à 12 km. Il y a un tennis, un commerce et une épicerie à quelques minutes.
Elle est proposée à l'achat pour 256 000 €.
N'hésitez pas à prendre contact avec notre agence (LEOVANT Aurélien : 02-35-80-66-66) pour plus de renseignements sur la maison. Maisons Balency Boos vous accompagne dans toutes vos démarches et dans tous vos projets immobiliers.

Annonce proposée par un Agent Commercial Partenaire.

Mentions légales

Terrain proposé par un partenaire foncier selon disponibilités et autorisation de publicité au prix de 38 500 €. Hors droit d'enregistrement et frais de notaire. Terrain + Maison proposés au prix de 217 500 € (Hors branchements et raccordements, papiers peints, peintures, revêtement de sol dans les chambres. Tarif modifiable sans préavis). Etiquette énergie : A. Différents modèles disponibles pour ce terrain. Assurances et garanties du constructeur (RC professionnelle, décennale, dommage ouvrage, garantie de remboursement de l'acompte, livraison à prix et délai convenu) : https://www.maisons-balency.fr/informations-legales/. HEXAOM Services est enregistré auprès de l'ORIAS en tant que Courtier en financement, Niveau 1, sous le numéro 14001345.

Contactez l'agence de Boos

02 35 80 66 66

    * Champs obligatoires

    Vos informations sont traitées par HEXAOM et transmises à un conseiller commercial qui vous contactera afin de répondre à votre demande. Les plans et images présentés sur notre site sont la propriété d’HEXAOM et ne peuvent pas être reproduits sans son accord. Pour retrouver notre politique de protection des données personnelles et exercer vos droits conformément à la « loi informatique et liberté » cliquez-ici.