Maison neuve à
Neauphlette
(78980) Référence :
TD2312642_4
Prix du projet : Maison avec Terrain
prix 462 100 €
- 7 pièces
- 4 chambres
- Surface maison 160 m2
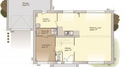
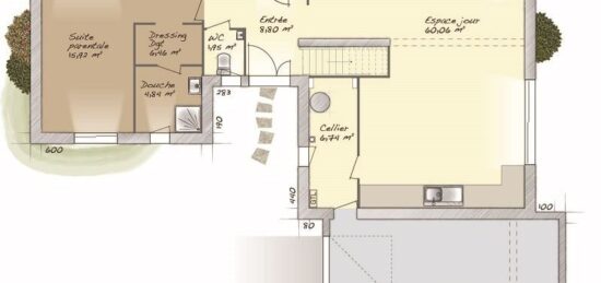
VENTE : maison F7 (160 m²) à Neauphlette
IDÉALEMENT SITUÉE - MAISON 7 PIÈCES NEUVE
À 31 km d'Évreux, venez découvrir en vente, idéalement située dans Neauphlette (78980), cette maison de 7 pièces de 160 m² et de 635 m² de terrain.
C'est une maison de 2 niveaux. Elle dispose de quatre chambres, d'une cuisine et de deux salles de bains. Cette maison est neuve.
La maison se trouve dans un quartier recherché. Il y a plusieurs écoles (maternelle, élémentaire, primaire et collège) à moins de 10 minutes en voiture, tout comme une crèche à moins de 10 minutes à pied. Niveau transports, on trouve les gares Bréval et Bueil à moins de 10 minutes en voiture. Il y a des tennis, des bibliothèques, des commerces, quatre supermarchés, des boulangeries, trois supérettes et une poissonnerie à proximité de la maison. Le marché Boulevard de la Gare anime le quartier tous les samedis matin.
Elle est proposée à l'achat pour 462 100 €.
Prenez contact avec notre agence (DUTEURTRE Thibault : 06-23-41-73-81) pour toute question sur la propriété, sur les démarches à suivre ou sur les modalités de vente. Maisons Balency Coignières est là pour vous accompagner à toutes les étapes de l'achat.
Annonce proposée par un Agent Commercial Partenaire.
Mentions légales
Terrain proposé par un partenaire foncier selon disponibilités et autorisation de publicité au prix de 105 900 €. Hors droit d'enregistrement et frais de notaire. Maison proposée, avec un contrat de construction de maison individuelle, dans le cadre de la loi du 19/12/1990, au prix de 356 200 € (Hors branchements et raccordements, papiers peints, peintures, revêtement de sol dans les chambres, qui sont chiffrés dans les travaux qui restent à charge du client. Tarif modifiable sans préavis). Étiquette énergie : A. Différents modèles disponibles pour ce terrain. Assurances et garanties du constructeur comprises (RC professionnelle, décennale, dommage ouvrage).Agence Maisons Balency de Coignières (78310)
- Téléphone :
- 01 34 61 42 59
- Adressse :
- Domexpo Ouest
78310 Coignières, France
