Maison neuve à
Neuville-sur-Oise
(95000) Référence :
CT2352739_4
Prix du projet : Maison avec Terrain
prix 399 800 €
- 7 pièces
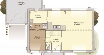
- 4 chambres
- Surface maison 140 m2
Maison T7 (140 m²) à vendre à Neuville-sur-Oise
EMPLACEMENT PRIVILÉGIÉ - MAISON 7 PIÈCES NEUVE
À vendre : à quelques minutes de la station Neuville Université (Paris à 30 min par le RER A), bénéficiant d'un emplacement d'exception dans Neuville-sur-Oise (95000), notre agence Maisons Balency Baillet-en-France est heureuse de vous proposer cette maison de 7 pièces de 140 m² et de 390 m² de terrain.
C'est une maison de 2 niveaux. Elle est composée de quatre chambres, d'une cuisine et de deux salles de bains. La maison est neuve.
Cette maison se situe dans un quartier attractif. On trouve l'École Primaire Publique Gustave Eiffel à moins de 10 minutes à pied. Niveau transports, il y a deux lignes de RER (A et C) ainsi que 32 gares à moins de 10 minutes en voiture. Il y a une bibliothèque, un tennis, une boulangerie et deux commerces dans les environs.
Son prix de vente est de 399 800 €.
Contactez Christophe TALAMONI (06-49-55-08-27) pour toute question sur la maison, sur les modalités de vente ou sur les démarches à suivre. Concrétisez vos projets immobiliers avec Maisons Balency Baillet-en-France.
Annonce proposée par un Agent Commercial Partenaire.
Mentions légales
Terrain proposé par un partenaire foncier selon disponibilités et autorisation de publicité au prix de 150 000 €. Hors droit d'enregistrement et frais de notaire. Maison proposée, avec un contrat de construction de maison individuelle, dans le cadre de la loi du 19/12/1990, au prix de 249 800 € (Hors branchements et raccordements, papiers peints, peintures, revêtement de sol dans les chambres, qui sont chiffrés dans les travaux qui restent à charge du client. Tarif modifiable sans préavis). Étiquette énergie : A. Différents modèles disponibles pour ce terrain. Assurances et garanties du constructeur comprises (RC professionnelle, décennale, dommage ouvrage).Agence Maisons Balency de Baillet-en-France (95560)
- Téléphone :
- 01 34 46 05 23
- Adressse :
- 81 rue de Paris
95560 Baillet-en-France, France
