Maison neuve à
Noiseau
(94880) Référence :
AM2253785_3
Prix du projet : Maison avec Terrain
prix 559 000 €
- 7 pièces
- 4 chambres
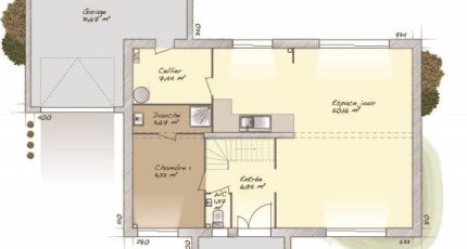
- Surface maison 160 m2
Noiseau : maison de 7 pièces (160 m²) à vendre
PROCHE DE PARIS - MAISON 7 PIÈCES NEUVE
Proche de la station Sucy-Bonneuil du RER A (20 min de Paris), découvrez à vendre à Noiseau (94880), cette maison de 7 pièces de 160 m². Son intérieur offre quatre chambres, une cuisine et deux salles de bains.
Le terrain du bien s'étend sur 406 m².
Cette maison possède 2 niveaux. Elle est neuve.
L'École Élémentaire Jean Jaurès et l'École Maternelle Albert Camus sont implantées à moins de 10 minutes à pied. Côté transports, il y a les lignes de RER A, E, D et C ainsi que 16 gares à moins de 10 minutes en voiture. On trouve un tennis, une bibliothèque, quatre commerces, un supermarché et une épicerie à proximité du logement.
Son prix de vente est de 559 000 €.
Contactez Aurelien MONTANIER (06-24-66-88-34) pour tout renseignement sur la maison, sur les démarches à suivre ou sur les modalités de vente.
Annonce proposée par un Agent Commercial Partenaire.
Mentions légales
Terrain proposé par un partenaire foncier selon disponibilités et autorisation de publicité au prix de 235 000 €. Hors droit d'enregistrement et frais de notaire. Maison proposée, avec un contrat de construction de maison individuelle, dans le cadre de la loi du 19/12/1990, au prix de 324 000 € (Hors branchements et raccordements, papiers peints, peintures, revêtement de sol dans les chambres, qui sont chiffrés dans les travaux qui restent à charge du client. Tarif modifiable sans préavis). Étiquette énergie : A. Différents modèles disponibles pour ce terrain. Assurances et garanties du constructeur comprises (RC professionnelle, décennale, dommage ouvrage).Agence Maisons Balency de Saint-Maur-des-Fossés (94100)
- Téléphone :
- 01 87 36 85 37
- Adressse :
- 12 avenue de la république
94100 Saint-Maur-des-Fossés, France
