Maison neuve à
Nonant
(14400) Référence :
SU2310835_2
Prix du projet : Maison avec Terrain
prix 240 900 €
- 6 pièces
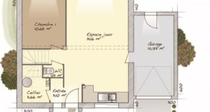
- 4 chambres
- Surface maison 98 m2
Nonant : maison F6 (98 m²) à vendre
MAISON 6 PIÈCES NEUVE - PROCHE DE CAEN
À vendre : à 7 km de Bayeux et 18 km de Carpiquet, nous vous proposons à Nonant (14400), cette maison de 6 pièces de 98 m². Elle se divise en quatre chambres, une cuisine et une salle de bains.
Le terrain du bien s'étend sur 260 m².
Cette maison possède 2 niveaux. Elle est à construire.
Proche des commerces et des écoles.
Niveau transports en commun, on trouve deux gares (Audrieu et Bayeux) à moins de 10 minutes en voiture. Il y a un accès à la nationale N13 à 2 km.
La commune est desservie par les transports scolaires.
Elle est à vendre pour la somme de 240 900 €.
N'hésitez pas à prendre contact avec Sophie UCENDO (tél : 06-35-39-35-17) pour obtenir de plus amples informations sur cette maison ou sur les modalités de vente. Maisons Balency Caen vous accompagne à toutes les étapes de l'achat et dans toutes vos démarches.
Mentions légales
Terrain proposé par un partenaire foncier selon disponibilités et autorisation de publicité au prix de 39 700 €. Hors droit d'enregistrement et frais de notaire. Maison proposée, avec un contrat de construction de maison individuelle, dans le cadre de la loi du 19/12/1990, au prix de 201 200 € (Hors branchements et raccordements, papiers peints, peintures, revêtement de sol dans les chambres, qui sont chiffrés dans les travaux qui restent à charge du client. Tarif modifiable sans préavis). Étiquette énergie : A. Différents modèles disponibles pour ce terrain. Assurances et garanties du constructeur comprises (RC professionnelle, décennale, dommage ouvrage).Agence Maisons Balency de Caen (14000)
- Téléphone :
- 02 31 50 38 15
- Adressse :
- 133, rue Saint Jean
14000 Caen, France
