Maison neuve à
Oncy-sur-École
(91490) Référence :
AM2414182_1
Prix du projet : Maison avec Terrain
prix 406 837 €
- 6 pièces
- 4 chambres
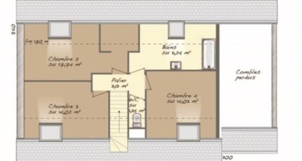
- Surface maison 117 m2
PROJET TERRAIN + MAISON + NOTAIRE + VIABILISATION = 406 837€
À 28 km d'Évry-Courcouronnes, Maisons Balency Moret-Loing-et-Orvanne vous propose cette maison de 6 pièces de plain-pied de 117 m² et de 696 m² de terrain en vente, bénéficiant d'un emplacement d'exception dans Oncy-sur-École (91490).
Son intérieur inclut quatre chambres, une cuisine et deux salles de bains. La maison est neuve.
La maison se situe dans un secteur recherché. L'École Maternelle École Publique et l'École Élémentaire René Descartes sont implantées à moins de 10 minutes à pied. Niveau transports en commun, on trouve la ligne de RER D (Maisse) ainsi que quatre gares à moins de 10 minutes en voiture.
Elle est à vendre pour la somme de 406 837 €.
Contactez Arnaud MOINE (06-40-48-40-55) pour toute question sur la maison.
Annonce proposée par un Agent Commercial Partenaire.
Mentions légales
Terrain proposé par un partenaire foncier selon disponibilités et autorisation de publicité au prix de 160 000 €. Hors droit d'enregistrement et frais de notaire. Terrain + Maison proposés au prix de 406 837 € (Hors branchements et raccordements, papiers peints, peintures, revêtement de sol dans les chambres. Tarif modifiable sans préavis). Etiquette énergie : A. Différents modèles disponibles pour ce terrain. Assurances et garanties du constructeur (RC professionnelle, décennale, dommage ouvrage, garantie de remboursement de l'acompte, livraison à prix et délai convenu) : https://www.maisons-balency.fr/informations-legales/. HEXAOM Services est enregistré auprès de l'ORIAS en tant que Courtier en financement, Niveau 1, sous le numéro 14001345.Agence Maisons Balency de Moret-sur-Loing (77250)
- Téléphone :
- 09 78 81 26 91
- Adressse :
- 96 avenue de Fontainebleau
77250 Moret-sur-Loing, France
