Maison neuve à
Osny
(95520) Référence :
CT2414393_4
Prix du projet : Maison avec Terrain
prix 326 600 €
- 5 pièces
- 3 chambres
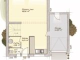
- Surface maison 87 m2
Osny : maison de 5 pièces (87 m²) à vendre
IDÉALEMENT SITUÉE - MAISON 5 PIÈCES NEUVE
À vendre : à côté du Transilien J (40 min de Paris), idéalement située dans Osny (95520), votre agence Maisons Balency Baillet-en-France est heureuse de vous proposer cette maison de 5 pièces de 87 m² et de 336 m² de terrain. Elle inclut trois chambres, une cuisine et une salle de bains.
Cette maison comporte 2 niveaux. Elle est neuve.
Cette maison se situe dans un secteur attractif. Cinq établissements scolaires se trouvent à moins de 10 minutes à pied. Niveau transports, il y a la gare Osny dans un rayon de 1 km. Il y a un tennis, des commerces, trois boulangeries, un bureau de poste, deux boucheries-charcuteries et quatre épiceries à quelques minutes de la maison.
Elle est proposée à l'achat pour 326 600 €.
Contactez Christophe TALAMONI (06-49-55-08-27) pour toute question sur la propriété, sur les démarches à suivre ou sur les modalités de vente. Maisons Balency Baillet-en-France est là pour vous accompagner dans tous vos projets immobiliers.
Annonce proposée par un Agent Commercial Partenaire.
Mentions légales
Terrain proposé par un partenaire foncier selon disponibilités et autorisation de publicité au prix de 145 000 €. Hors droit d'enregistrement et frais de notaire. Terrain + Maison proposés au prix de 326 600 € (Hors branchements et raccordements, papiers peints, peintures, revêtement de sol dans les chambres. Tarif modifiable sans préavis). Etiquette énergie : A. Différents modèles disponibles pour ce terrain. Assurances et garanties du constructeur (RC professionnelle, décennale, dommage ouvrage, garantie de remboursement de l'acompte, livraison à prix et délai convenu) : https://www.maisons-balency.fr/informations-legales/. HEXAOM Services est enregistré auprès de l'ORIAS en tant que Courtier en financement, Niveau 1, sous le numéro 14001345.Agence Maisons Balency de Baillet-en-France (95560)
- Téléphone :
- 01 34 46 05 23
- Adressse :
- 81 rue de Paris
95560 Baillet-en-France, France
