Maison neuve à
Oulins (28260) Référence : SH2342448_2

Prix du projet : Maison avec Terrain

prix 235 000 €

  • 6 pièces
  • 4 chambres
  • Surface maison 91 m2

VENTE : maison de 6 pièces (91 m²) à Oulins
QUARTIER RECHERCHÉ - MAISON 6 PIÈCES NEUVE
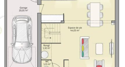
À 31 km d'Évreux, Maisons Balency Louviers vous présente en vente, située dans un secteur attractif d'Oulins (28260), cette maison de 6 pièces de 91 m² et de 315 m² de terrain.
C'est une maison de 2 niveaux. Elle offre quatre chambres, une cuisine et une salle de bains. La maison est neuve.
Ce bien se trouve dans un quartier prisé. Il y a l'École Primaire Michel Brunel à moins de 10 minutes à pied. Côté transports en commun, on trouve les gares Bueil et Bréval à moins de 10 minutes en voiture. L'autoroute A13 et les nationales N12, N154 et N13 sont accessibles à moins de 18 km. Il y a une boulangerie et plusieurs commerces à quelques minutes du bien.
Il est à vendre pour la somme de 235 000 €.
Contactez notre agence (HOTTE Sébastien : 06-15-58-21-40) pour plus de renseignements sur la maison, sur les modalités de vente ou sur les démarches à suivre.

Annonce proposée par un Agent Commercial Partenaire.

Mentions légales

Terrain proposé par un partenaire foncier selon disponibilités et autorisation de publicité au prix de 69 900 €. Hors droit d'enregistrement et frais de notaire. Maison proposée, avec un contrat de construction de maison individuelle, dans le cadre de la loi du 19/12/1990, au prix de 165 100 € (Hors branchements et raccordements, papiers peints, peintures, revêtement de sol dans les chambres, qui sont chiffrés dans les travaux qui restent à charge du client. Tarif modifiable sans préavis). Étiquette énergie : A. Différents modèles disponibles pour ce terrain. Assurances et garanties du constructeur comprises (RC professionnelle, décennale, dommage ouvrage).

Contactez l'agence de Louviers

02 32 51 43 53

    * Champs obligatoires

    Vos informations sont traitées par HEXAOM et transmises à un conseiller commercial qui vous contactera afin de répondre à votre demande. Les plans et images présentés sur notre site sont la propriété d’HEXAOM et ne peuvent pas être reproduits sans son accord. Pour retrouver notre politique de protection des données personnelles et exercer vos droits conformément à la « loi informatique et liberté » cliquez-ici.