Maison neuve à
Ozoir-la-Ferrière
(77330) Référence :
AM2321283_1
Prix du projet : Maison avec Terrain
prix 369 000 €
- 5 pièces
- 3 chambres
- Surface maison 100 m2
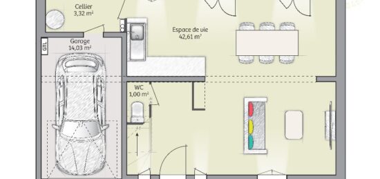
VENTE d'une maison de 5 pièces (100 m²) à Ozoir-la-Ferrière
MAISON 5 PIÈCES NEUVE
En vente : à deux pas du RER E (30 min de Paris), nous vous présentons à Ozoir-la-Ferrière (77330), cette maison de 5 pièces de plain-pied de 100 m² et de 327 m² de terrain.
Elle est composée de trois chambres, d'une cuisine et de deux salles de bains. La maison est neuve.
Il y a des établissements scolaires du primaire et du secondaire à moins de 10 minutes à pied, tout comme une structure d'accueil pour les tout-petits. Côté transports, on trouve le RER E et A ainsi que six gares à moins de 10 minutes en voiture. Il y a un tennis, un bassin de natation, des commerces, trois boulangeries, deux supermarchés, des épiceries et deux poissonneries dans les environs. Enfin, le marché Place des sports anime les environs.
Elle est à vendre pour la somme de 369 000 €.
Contactez Aurelien MONTANIER (tél : 06-24-66-88-34) pour toute information sur la maison.
Annonce proposée par un Agent Commercial Partenaire.
Mentions légales
Terrain proposé par un partenaire foncier selon disponibilités et autorisation de publicité au prix de 169 000 €. Hors droit d'enregistrement et frais de notaire. Maison proposée, avec un contrat de construction de maison individuelle, dans le cadre de la loi du 19/12/1990, au prix de 200 000 € (Hors branchements et raccordements, papiers peints, peintures, revêtement de sol dans les chambres, qui sont chiffrés dans les travaux qui restent à charge du client. Tarif modifiable sans préavis). Étiquette énergie : A. Différents modèles disponibles pour ce terrain. Assurances et garanties du constructeur comprises (RC professionnelle, décennale, dommage ouvrage).Agence Maisons Balency de Saint-Maur-des-Fossés (94100)
- Téléphone :
- 01 87 36 85 37
- Adressse :
- 12 avenue de la république
94100 Saint-Maur-des-Fossés, France
