Maison neuve à
Pacy-sur-Eure (27120) Référence : KD2379300_1

Prix du projet : Maison avec Terrain

prix 342 410 €

  • 5 pièces
  • 3 chambres
  • Surface maison 120 m2

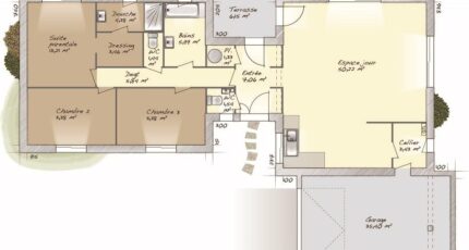
VENTE : maison de 5 pièces (120 m²) à Pacy-sur-Eure
MAISON 5 PIÈCES NEUVE - PROCHE D'ÉVREUX
À vendre : localisée à deux pas d'Évreux, à Pacy-sur-Eure (27120), laissez vous charmer par cette maison de 5 pièces de plain-pied de 120 m². Son intérieur compte trois chambres, une cuisine et deux salles de bains.
Le terrain du bien s'étend sur 592 m².
La maison est neuve.
Il y a plusieurs écoles (maternelle, élémentaire, primaire et collège) à moins de 10 minutes à pied. La nationale N13 est accessible à 1 km. On trouve deux tennis, un bassin de natation, des commerces, trois supermarchés, quatre boulangeries, un bureau de poste et deux poissonneries à proximité. Enfin, le marché Place de la Mairie a lieu tous les jeudis matin.
Elle est proposée à l'achat pour 342 410 €.
Contactez notre agence (Karen DELELIS : 07-49-97-72-93) pour toute information sur cette maison.

Annonce proposée par un Agent Commercial Partenaire.

Mentions légales

Terrain proposé par un partenaire foncier selon disponibilités et autorisation de publicité au prix de 71 000 €. Hors droit d'enregistrement et frais de notaire. Terrain + Maison proposés au prix de 342 410 € (Hors branchements et raccordements, papiers peints, peintures, revêtement de sol dans les chambres. Tarif modifiable sans préavis). Etiquette énergie : A. Différents modèles disponibles pour ce terrain. Assurances et garanties du constructeur (RC professionnelle, décennale, dommage ouvrage, garantie de remboursement de l'acompte, livraison à prix et délai convenu) : https://www.maisons-balency.fr/informations-legales/. HEXAOM Services est enregistré auprès de l'ORIAS en tant que Courtier en financement, Niveau 1, sous le numéro 14001345.

Contactez l'agence de Gravigny

02 32 51 49 29

    * Champs obligatoires

    Vos informations sont traitées par HEXAOM et transmises à un conseiller commercial qui vous contactera afin de répondre à votre demande. Les plans et images présentés sur notre site sont la propriété d’HEXAOM et ne peuvent pas être reproduits sans son accord. Pour retrouver notre politique de protection des données personnelles et exercer vos droits conformément à la « loi informatique et liberté » cliquez-ici.