Maison neuve à
Pamfou
(77830) Référence :
KM2448536_1
Prix du projet : Maison avec Terrain
prix 515 000 €
- 7 pièces
- 4 chambres
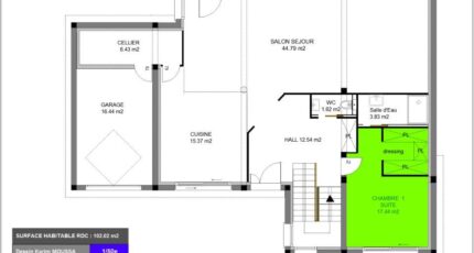
- Surface maison 160 m2
OPPORTUNITÉ À PAMFOU (77830) : TERRAIN VIABILISÉ DE 705 m²+ exemple de construction "Maison Balency agence d'Ormoy"
Le calme d'un village préservé avec toutes les commodités à portée de main.
L'agence Maisons BALENCY d'Ormoy, Groupe Hexaom, vous propose cette belle parcelle de 705 m² située à Pamfou. Ce terrain, prêt à bâtir, représente l'équilibre parfait pour ceux qui recherchent la tranquillité sans l'isolement.
Les points clés du terrain
Prêt à construire : Terrain entièrement viabilisé, vous assurant une installation rapide et une maîtrise totale de vos coûts de raccordement.
Belle façade : Une largeur de 20 mètres linéaires, idéale pour une architecture moderne ou traditionnelle.
Surface optimisée : 705 m² pour profiter d'un beau jardin tout en limitant l'entretien.
Avantage financier : Classé en Zone B2, facilitant l'accès à certains dispositifs de financement.
Un emplacement stratégique : Le calme et le confort
Pamfou profite d'une situation géographique idéale avec des accès rapides aux services essentiels :
Commodités à 5 minutes : Le Châtelet-en-Brie (à seulement 6 km) vous offre un centre commercial complet et toutes les structures nécessaires au quotidien.
Scolarité : École maternelle et primaire au village. Le collège est situé au Châtelet-en-Brie (6 km), accessible rapidement.
Transports : Accès autoroutier A5 à proximité. Gares SNCF (Ligne R) vers Paris Gare de Lyon accessibles en 15 minutes.
Loisirs : Un cadre de vie privilégié en lisière de forêt, parfait pour les activités de plein air.
Votre projet avec Maisons BALENCY
L'agence d'Ormoy vous accompagne dans la conception de votre maison RE2020. Choisissez la sérénité avec nos modèles traditionnels ou l'innovation avec notre Ligne Bois : une construction écologique, à isolation thermique renforcée et au bilan carbone positif.
PRIX du terrain : 110 000 €
La qualité d'un terrain viabilisé dans un secteur en pleine expansion.
Contactez-nous pour une étude gratuite et personnalisée :
Mentions légales
Terrain proposé par un partenaire foncier selon disponibilités et autorisation de publicité au prix de 110 000 €. Hors droit d'enregistrement et frais de notaire. Terrain + Maison proposés au prix de 515 000 € (Hors branchements et raccordements, papiers peints, peintures, revêtement de sol dans les chambres. Tarif modifiable sans préavis). Etiquette énergie : A. Différents modèles disponibles pour ce terrain. Assurances et garanties du constructeur (RC professionnelle, décennale, dommage ouvrage, garantie de remboursement de l'acompte, livraison à prix et délai convenu) : https://www.maisons-balency.fr/informations-legales/. HEXAOM Services est enregistré auprès de l'ORIAS en tant que Courtier en financement, Niveau 1, sous le numéro 14001345.Agence Maisons Balency de Ormoy (91540)
- Téléphone :
- 09 67 70 15 81
- Adressse :
- 23 chemin de Tournenfils - 1er étage
91540 Ormoy, France
