Maison neuve à
Parville (27180) Référence : SEMA9031_11

Prix du projet : Maison avec Terrain

prix 389 000 €

  • 7 pièces
  • 5 chambres
  • Surface maison 170 m2

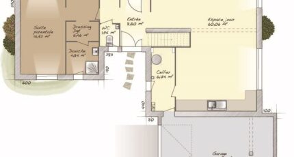
Maison T7 (170 m²) à vendre à Parville
PROCHE D'ÉVREUX - MAISON 7 PIÈCES NEUVE
À vendre : à quelques kilomètres d'Évreux, nous vous présentons cette maison de 7 pièces de plain-pied de 170 m² et de 600 m² de terrain à Parville (27180).
Conçue de plain-pied, elle est composée de cinq chambres, d'une cuisine et de trois salles de bains. Cette maison est neuve.
Niveau transports, il y a deux gares (Évreux Normandie et La Bonneville-sur-Iton) à moins de 10 minutes en voiture. Il y a un accès à la nationale N13 à 1 km. On trouve un commerce dans les environs.
Son prix de vente est de 389 000 €.
N'hésitez pas à prendre contact avec notre agence (Sébastien MASSON : 06-23-38-14-17) pour toute question sur le bien. Faites de vos projets immobiliers une réalité avec Maisons Balency Boos.

Annonce proposée par un Agent Commercial Partenaire.

Mentions légales

Terrain proposé par un partenaire foncier selon disponibilités et autorisation de publicité au prix de 59 000 €. Hors droit d'enregistrement et frais de notaire. Maison proposée, avec un contrat de construction de maison individuelle, dans le cadre de la loi du 19/12/1990, au prix de 330 000 € (Hors branchements et raccordements, papiers peints, peintures, revêtement de sol dans les chambres, qui sont chiffrés dans les travaux qui restent à charge du client. Tarif modifiable sans préavis). Étiquette énergie : A. Différents modèles disponibles pour ce terrain. Assurances et garanties du constructeur comprises (RC professionnelle, décennale, dommage ouvrage).

Contactez l'agence de Boos

02 35 80 66 66

    * Champs obligatoires

    Vos informations sont traitées par HEXAOM et transmises à un conseiller commercial qui vous contactera afin de répondre à votre demande. Les plans et images présentés sur notre site sont la propriété d’HEXAOM et ne peuvent pas être reproduits sans son accord. Pour retrouver notre politique de protection des données personnelles et exercer vos droits conformément à la « loi informatique et liberté » cliquez-ici.