Maison neuve à
Parville (27180) Référence : SEMA9031_3

Prix du projet : Maison avec Terrain

prix 209 000 €

  • 5 pièces
  • 3 chambres
  • Surface maison 76 m2

VENTE : maison F5 (76 m²) à Parville
PROCHE D'ÉVREUX - MAISON 5 PIÈCES NEUVE
À vendre à 4 km d'Évreux, à Parville (27180), notre agence Maisons Balency Boos est ravie de vous proposer cette maison de 5 pièces de 76 m² et de 600 m² de terrain.
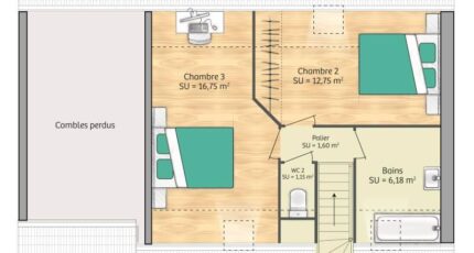
Cette maison possède 2 niveaux. Elle se divise en trois chambres, une cuisine et une salle de bains. La maison est neuve.
Côté transports, il y a deux gares (Évreux Normandie et La Bonneville-sur-Iton) à moins de 10 minutes en voiture. On trouve un accès à la nationale N13 à 1 km. On trouve un commerce à quelques minutes du bien.
Son prix de vente est de 209 000 €.
Contactez notre agence (MASSON Sébastien : 06-23-38-14-17) pour plus de renseignements sur cette propriété, sur les démarches à suivre ou sur les modalités de vente.

Annonce proposée par un Agent Commercial Partenaire.

Mentions légales

Terrain proposé par un partenaire foncier selon disponibilités et autorisation de publicité au prix de 59 000 €. Hors droit d'enregistrement et frais de notaire. Maison proposée, avec un contrat de construction de maison individuelle, dans le cadre de la loi du 19/12/1990, au prix de 150 000 € (Hors branchements et raccordements, papiers peints, peintures, revêtement de sol dans les chambres, qui sont chiffrés dans les travaux qui restent à charge du client. Tarif modifiable sans préavis). Étiquette énergie : A. Différents modèles disponibles pour ce terrain. Assurances et garanties du constructeur comprises (RC professionnelle, décennale, dommage ouvrage).

Contactez l'agence de Boos

02 35 80 66 66

    * Champs obligatoires

    Vos informations sont traitées par HEXAOM et transmises à un conseiller commercial qui vous contactera afin de répondre à votre demande. Les plans et images présentés sur notre site sont la propriété d’HEXAOM et ne peuvent pas être reproduits sans son accord. Pour retrouver notre politique de protection des données personnelles et exercer vos droits conformément à la « loi informatique et liberté » cliquez-ici.