Maison neuve à
Parville (27180) Référence : SEMA9031_7

Prix du projet : Maison avec Terrain

prix 253 000 €

  • 9 pièces
  • 5 chambres
  • Surface maison 124 m2

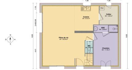
Parville : maison de 9 pièces (124 m²) en vente
PROCHE D'ÉVREUX - MAISON 9 PIÈCES NEUVE
À vendre : localisée à 4 km d'Évreux, notre agence Maisons Balency Boos est heureuse de vous présenter à Parville (27180), cette maison de 9 pièces de 124 m².
Cette maison compte 2 niveaux. Son intérieur inclut cinq chambres, une cuisine et trois salles de bains. La maison est neuve.
Le terrain du bien est de 600 m².
Côté transports en commun, il y a deux gares (Évreux Normandie et La Bonneville-sur-Iton) à moins de 10 minutes en voiture. La nationale N13 est accessible à 1 km. On trouve un commerce à proximité de la maison.
Elle est proposée à l'achat pour 253 000 €.
N'hésitez pas à prendre contact avec Sébastien MASSON (06-23-38-14-17) pour toute information sur ce bien, sur les démarches à suivre ou sur les modalités de vente. Maisons Balency Boos vous accompagne à toutes les étapes de votre projet et dans tous vos projets immobiliers.

Annonce proposée par un Agent Commercial Partenaire.

Mentions légales

Terrain proposé par un partenaire foncier selon disponibilités et autorisation de publicité au prix de 59 000 €. Hors droit d'enregistrement et frais de notaire. Maison proposée, avec un contrat de construction de maison individuelle, dans le cadre de la loi du 19/12/1990, au prix de 194 000 € (Hors branchements et raccordements, papiers peints, peintures, revêtement de sol dans les chambres, qui sont chiffrés dans les travaux qui restent à charge du client. Tarif modifiable sans préavis). Étiquette énergie : A. Différents modèles disponibles pour ce terrain. Assurances et garanties du constructeur comprises (RC professionnelle, décennale, dommage ouvrage).

Contactez l'agence de Boos

02 35 80 66 66

    * Champs obligatoires

    Vos informations sont traitées par HEXAOM et transmises à un conseiller commercial qui vous contactera afin de répondre à votre demande. Les plans et images présentés sur notre site sont la propriété d’HEXAOM et ne peuvent pas être reproduits sans son accord. Pour retrouver notre politique de protection des données personnelles et exercer vos droits conformément à la « loi informatique et liberté » cliquez-ici.