Maison neuve à
Parville (27180) Référence : SEMA9031_9

Prix du projet : Maison avec Terrain

prix 333 000 €

  • 5 pièces
  • 3 chambres
  • Surface maison 120 m2

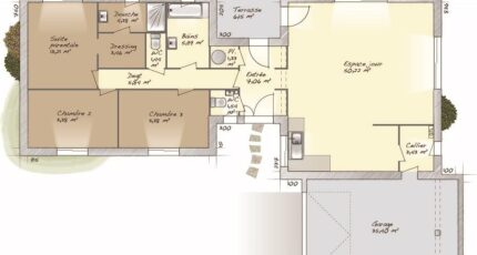
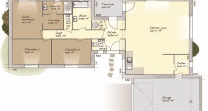
VENTE d'une maison F5 (120 m²) à Parville
MAISON 5 PIÈCES NEUVE - PROCHE D'ÉVREUX
À vendre à quelques kilomètres d'Évreux, Maisons Balency Boos vous propose à Parville (27180), cette maison de 5 pièces de plain-pied de 120 m².
Son intérieur inclut trois chambres, une cuisine et deux salles de bains. La maison est neuve.
Le terrain de la propriété s'étend sur 600 m².
Niveau transports, on trouve les gares Évreux Normandie et La Bonneville-sur-Iton à moins de 10 minutes en voiture. La nationale N13 est accessible à 1 km. Il y a un commerce à quelques minutes.
Son prix de vente est de 333 000 €.
Contactez Sébastien MASSON (06-23-38-14-17) pour toute question sur cette maison. Maisons Balency Boos vous accompagne dans toutes vos démarches et dans tous vos projets immobiliers.

Annonce proposée par un Agent Commercial Partenaire.

Mentions légales

Terrain proposé par un partenaire foncier selon disponibilités et autorisation de publicité au prix de 59 000 €. Hors droit d'enregistrement et frais de notaire. Maison proposée, avec un contrat de construction de maison individuelle, dans le cadre de la loi du 19/12/1990, au prix de 274 000 € (Hors branchements et raccordements, papiers peints, peintures, revêtement de sol dans les chambres, qui sont chiffrés dans les travaux qui restent à charge du client. Tarif modifiable sans préavis). Étiquette énergie : A. Différents modèles disponibles pour ce terrain. Assurances et garanties du constructeur comprises (RC professionnelle, décennale, dommage ouvrage).

Contactez l'agence de Boos

02 35 80 66 66

    * Champs obligatoires

    Vos informations sont traitées par HEXAOM et transmises à un conseiller commercial qui vous contactera afin de répondre à votre demande. Les plans et images présentés sur notre site sont la propriété d’HEXAOM et ne peuvent pas être reproduits sans son accord. Pour retrouver notre politique de protection des données personnelles et exercer vos droits conformément à la « loi informatique et liberté » cliquez-ici.