Maison neuve à
Pavilly (76570) Référence : MJ2346132_3

Prix du projet : Maison avec Terrain

prix 259 000 €

  • 6 pièces
  • 5 chambres
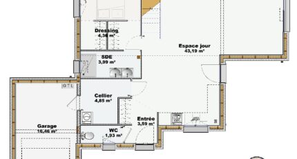
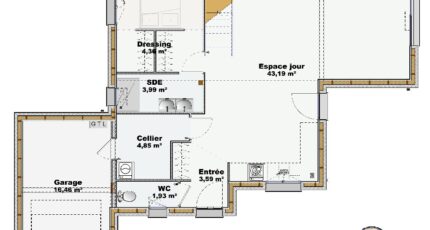
  • Surface maison 114 m2

VENTE : maison F6 (114 m²) à Pavilly
IDÉALEMENT SITUÉE - MAISON 6 PIÈCES NEUVE
En vente : à 42 km de la Manche et à deux pas de Rouen, nous sommes ravis de vous proposer cette maison de 6 pièces de 114 m² idéalement située dans Pavilly (76570).
C'est une maison de 2 niveaux. Elle compte cinq chambres, une cuisine et deux salles de bains. Cette maison est neuve.
Le terrain du bien est de 789 m².
La maison se trouve dans un quartier convoité. Plusieurs établissements scolaires (maternelle, élémentaire, primaire et collège) sont implantés à moins de 10 minutes à pied. Côté transports, il y a quatre gares à moins de 10 minutes en voiture. Les autoroutes A150 et A151 sont accessibles à moins de 8 km. On trouve des commerces, quatre boulangeries, un supermarché, deux poissonneries et un bureau de poste à quelques minutes à peine. Ne manquez pas le marché Place des Halles tous les jeudis matin.
Son prix de vente est de 259 000 €.
Prenez contact avec Michael JOURDON (06.98.97.57.93) pour obtenir de plus amples informations sur la maison. Maisons Balency Boos vous accompagne à toutes les étapes de l'achat et dans tous vos projets immobiliers.

Annonce proposée par un Agent Commercial Partenaire.

Mentions légales

Terrain proposé par un partenaire foncier selon disponibilités et autorisation de publicité au prix de 45 000 €. Hors droit d'enregistrement et frais de notaire. Terrain + Maison proposés au prix de 214 000 € (Hors branchements et raccordements, papiers peints, peintures, revêtement de sol dans les chambres. Tarif modifiable sans préavis). Etiquette énergie : A. Différents modèles disponibles pour ce terrain. Assurances et garanties du constructeur (RC professionnelle, décennale, dommage ouvrage, garantie de remboursement de l'acompte, livraison à prix et délai convenu) : https://www.maisons-balency.fr/informations-legales/. HEXAOM Services est enregistré auprès de l'ORIAS en tant que Courtier en financement, Niveau 1, sous le numéro 14001345.

Contactez l'agence de Boos

02 35 80 66 66

    * Champs obligatoires

    Vos informations sont traitées par HEXAOM et transmises à un conseiller commercial qui vous contactera afin de répondre à votre demande. Les plans et images présentés sur notre site sont la propriété d’HEXAOM et ne peuvent pas être reproduits sans son accord. Pour retrouver notre politique de protection des données personnelles et exercer vos droits conformément à la « loi informatique et liberté » cliquez-ici.