Maison neuve à
Pavilly (76570) Référence : MJ2346149_1

Prix du projet : Maison avec Terrain

prix 249 000 €

  • 4 pièces
  • 3 chambres
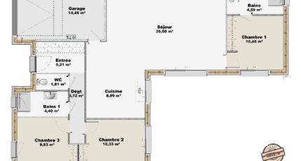
  • Surface maison 94 m2

VENTE d'une maison F4 (94 m²) à Pavilly
EMPLACEMENT PRIVILÉGIÉ - MAISON 4 PIÈCES NEUVE
En vente : à 42 km de la Manche et à deux pas de Rouen, bénéficiant d'un emplacement privilégié dans Pavilly (76570), Maisons Balency Boos vous propose cette maison de 4 pièces de plain-pied de 94 m² et de 682 m² de terrain. Son intérieur inclut trois chambres, une cuisine et deux salles de bains.
Cette maison est neuve.
Cette maison se situe dans un secteur convoité. On trouve plusieurs écoles (maternelle, élémentaire, primaire et collège) à moins de 10 minutes à pied. Niveau transports, il y a quatre gares à moins de 10 minutes en voiture. Les autoroutes A150 et A151 sont accessibles à moins de 8 km. On trouve des commerces, quatre boulangeries, un supermarché, deux boucheries-charcuteries et un bureau de poste à proximité. Enfin, le marché Place des Halles a lieu chaque jeudi matin.
Elle est à vendre pour la somme de 249 000 €.
Prenez contact avec notre agence (JOURDON Michael : 06.43.05.84.44) pour toute information sur la maison ou sur les démarches à suivre.

Annonce proposée par un Agent Commercial Partenaire.

Mentions légales

Terrain proposé par un partenaire foncier selon disponibilités et autorisation de publicité au prix de 49 000 €. Hors droit d'enregistrement et frais de notaire. Terrain + Maison proposés au prix de 200 000 € (Hors branchements et raccordements, papiers peints, peintures, revêtement de sol dans les chambres. Tarif modifiable sans préavis). Etiquette énergie : A. Différents modèles disponibles pour ce terrain. Assurances et garanties du constructeur (RC professionnelle, décennale, dommage ouvrage, garantie de remboursement de l'acompte, livraison à prix et délai convenu) : https://www.maisons-balency.fr/informations-legales/. HEXAOM Services est enregistré auprès de l'ORIAS en tant que Courtier en financement, Niveau 1, sous le numéro 14001345.

Contactez l'agence de Boos

02 35 80 66 66

    * Champs obligatoires

    Vos informations sont traitées par HEXAOM et transmises à un conseiller commercial qui vous contactera afin de répondre à votre demande. Les plans et images présentés sur notre site sont la propriété d’HEXAOM et ne peuvent pas être reproduits sans son accord. Pour retrouver notre politique de protection des données personnelles et exercer vos droits conformément à la « loi informatique et liberté » cliquez-ici.