Maison neuve à
Pavilly (76570) Référence : MJ2346149_3

Prix du projet : Maison avec Terrain

prix 399 900 €

  • 9 pièces
  • 4 chambres
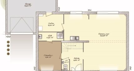
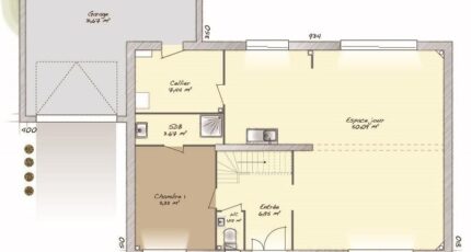
  • Surface maison 186 m2

Pavilly : maison de 9 pièces (186 m²) en vente
EMPLACEMENT PRIVILÉGIÉ - MAISON 9 PIÈCES NEUVE
À vendre : à 42 km de la Manche et à deux pas de Rouen, nous sommes ravis de vous présenter, bénéficiant d'un emplacement d'exception dans Pavilly (76570), cette maison de 9 pièces de 186 m².
Cette maison possède 2 niveaux. Son intérieur inclut quatre chambres, une cuisine et deux salles de bains. La maison est neuve.
Le terrain du bien est de 682 m².
La maison est située dans un quartier prisé. Plusieurs écoles (maternelle, élémentaire, primaire et collège) sont implantées à moins de 10 minutes à pied. Niveau transports en commun, on trouve quatre gares à moins de 10 minutes en voiture. Les autoroutes A150 et A151 sont accessibles à moins de 8 km. Il y a des commerces, quatre boulangeries, un supermarché, un bureau de poste et deux poissonneries à quelques minutes du logement. Le marché Place des Halles anime le quartier chaque jeudi matin.
Elle est à vendre pour la somme de 399 900 €.
Contactez Michael JOURDON (06.43.05.84.44) pour toute question sur la maison, sur les modalités de vente ou sur les démarches à suivre. Donnez vie à vos projets immobiliers avec Maisons Balency Boos.

Annonce proposée par un Agent Commercial Partenaire.

Mentions légales

Terrain proposé par un partenaire foncier selon disponibilités et autorisation de publicité au prix de 49 000 €. Hors droit d'enregistrement et frais de notaire. Terrain + Maison proposés au prix de 350 900 € (Hors branchements et raccordements, papiers peints, peintures, revêtement de sol dans les chambres. Tarif modifiable sans préavis). Etiquette énergie : A. Différents modèles disponibles pour ce terrain. Assurances et garanties du constructeur (RC professionnelle, décennale, dommage ouvrage, garantie de remboursement de l'acompte, livraison à prix et délai convenu) : https://www.maisons-balency.fr/informations-legales/. HEXAOM Services est enregistré auprès de l'ORIAS en tant que Courtier en financement, Niveau 1, sous le numéro 14001345.

Contactez l'agence de Boos

02 35 80 66 66

    * Champs obligatoires

    Vos informations sont traitées par HEXAOM et transmises à un conseiller commercial qui vous contactera afin de répondre à votre demande. Les plans et images présentés sur notre site sont la propriété d’HEXAOM et ne peuvent pas être reproduits sans son accord. Pour retrouver notre politique de protection des données personnelles et exercer vos droits conformément à la « loi informatique et liberté » cliquez-ici.