Maison neuve à
Pavilly (76570) Référence : SEMA9024_3

Prix du projet : Maison avec Terrain

prix 195 000 €

  • 5 pièces
  • 3 chambres
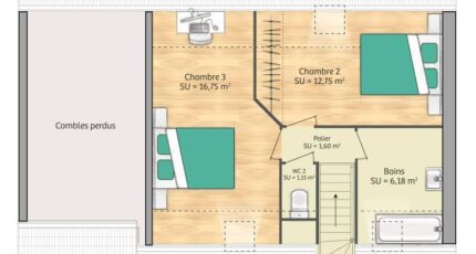
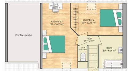
  • Surface maison 76 m2

Maison T5 (76 m²) à vendre à Pavilly
PROCHE DE ROUEN - MAISON 5 PIÈCES NEUVE
À vendre à 42 km de la Manche et à deux pas de Rouen, à Pavilly (76570), votre agence Maisons Balency Boos est ravie de vous présenter cette maison de 5 pièces de 76 m² et de 700 m² de terrain.
C'est une maison de 2 niveaux. Elle compte trois chambres, une cuisine et une salle de bains. La maison est neuve.
Il y a plusieurs écoles (maternelle, élémentaire, primaire et collège) à moins de 10 minutes à pied. Côté transports, on trouve quatre gares à moins de 10 minutes en voiture. Les autoroutes A150 et A151 sont accessibles à moins de 8 km. Il y a des commerces, quatre boulangeries, un supermarché, deux boucheries-charcuteries et deux poissonneries à quelques minutes à peine. Ne manquez pas le marché Place des Halles tous les jeudis matin.
Il est à vendre pour la somme de 195 000 €.
Contactez Sébastien MASSON (06-23-38-14-17) pour tout renseignement sur cette maison. Maisons Balency Boos vous accompagne dans tous vos projets immobiliers et dans toutes vos démarches.

Annonce proposée par un Agent Commercial Partenaire.

Mentions légales

Terrain proposé par un partenaire foncier selon disponibilités et autorisation de publicité au prix de 45 000 €. Hors droit d'enregistrement et frais de notaire. Maison proposée, avec un contrat de construction de maison individuelle, dans le cadre de la loi du 19/12/1990, au prix de 150 000 € (Hors branchements et raccordements, papiers peints, peintures, revêtement de sol dans les chambres, qui sont chiffrés dans les travaux qui restent à charge du client. Tarif modifiable sans préavis). Étiquette énergie : A. Différents modèles disponibles pour ce terrain. Assurances et garanties du constructeur comprises (RC professionnelle, décennale, dommage ouvrage).

Contactez l'agence de Boos

02 35 80 66 66

    * Champs obligatoires

    Vos informations sont traitées par HEXAOM et transmises à un conseiller commercial qui vous contactera afin de répondre à votre demande. Les plans et images présentés sur notre site sont la propriété d’HEXAOM et ne peuvent pas être reproduits sans son accord. Pour retrouver notre politique de protection des données personnelles et exercer vos droits conformément à la « loi informatique et liberté » cliquez-ici.