Maison neuve à
Pavilly (76570) Référence : SEMA9024_9

Prix du projet : Maison avec Terrain

prix 319 000 €

  • 5 pièces
  • 3 chambres
  • Surface maison 120 m2

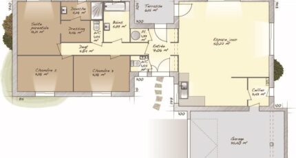
VENTE d'une maison de 5 pièces (120 m²) à Pavilly
PROCHE DE ROUEN - MAISON 5 PIÈCES NEUVE
En vente : à 42 km de la Manche et à quelques kilomètres de Rouen, laissez vous charmer par à Pavilly (76570), cette maison de 5 pièces de plain-pied de 120 m² et de 700 m² de terrain. Son intérieur est composé de trois chambres, d'une cuisine et de deux salles de bains.
La maison est neuve.
On trouve plusieurs établissements scolaires (maternelle, élémentaire, primaire et collège) à moins de 10 minutes à pied. Côté transports en commun, il y a quatre gares à moins de 10 minutes en voiture. Les autoroutes A150 et A151 sont accessibles à moins de 8 km. On trouve des commerces, quatre boulangeries, un supermarché, deux poissonneries et deux boucheries-charcuteries à quelques minutes à peine. Ne manquez pas le marché Place des Halles tous les jeudis matin.
Elle est à vendre pour la somme de 319 000 €.
N'hésitez pas à prendre contact avec notre agence (Sébastien MASSON : 06-23-38-14-17) pour tout renseignement sur ce bien, sur les démarches à suivre ou sur les modalités de vente. Concrétisez vos projets immobiliers avec Maisons Balency Boos.

Annonce proposée par un Agent Commercial Partenaire.

Mentions légales

Terrain proposé par un partenaire foncier selon disponibilités et autorisation de publicité au prix de 45 000 €. Hors droit d'enregistrement et frais de notaire. Maison proposée, avec un contrat de construction de maison individuelle, dans le cadre de la loi du 19/12/1990, au prix de 274 000 € (Hors branchements et raccordements, papiers peints, peintures, revêtement de sol dans les chambres, qui sont chiffrés dans les travaux qui restent à charge du client. Tarif modifiable sans préavis). Étiquette énergie : A. Différents modèles disponibles pour ce terrain. Assurances et garanties du constructeur comprises (RC professionnelle, décennale, dommage ouvrage).

Contactez l'agence de Boos

02 35 80 66 66

    * Champs obligatoires

    Vos informations sont traitées par HEXAOM et transmises à un conseiller commercial qui vous contactera afin de répondre à votre demande. Les plans et images présentés sur notre site sont la propriété d’HEXAOM et ne peuvent pas être reproduits sans son accord. Pour retrouver notre politique de protection des données personnelles et exercer vos droits conformément à la « loi informatique et liberté » cliquez-ici.