Maison neuve à
Pecqueuse
(91470) Référence :
KM2415583_1
Prix du projet : Maison avec Terrain
prix 478 000 €
- 6 pièces
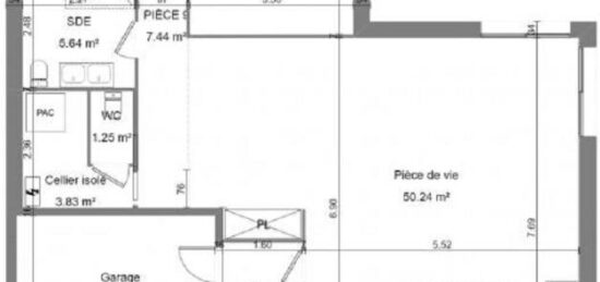
- 4 chambres
- Surface maison 150 m2
PECQUEUSE
Vous souhaitez faire construire la maison qui vous ressemble ? Saisissez cette dernière opportunité d'acquérir un terrain au sein d'un programme neuf de qualité à Pecqueuse.
Des terrains prêts à bâtir, disponibles immédiatement
Terrains entièrement viabilisés : eau, électricité, télécom, tout-à-l'égout
Livraison immédiate : lancez votre projet de construction sans délai
Superficies de 403 m² à 559 m²
Un environnement idéal pour une maison familiale, avec jardin, terrasse et espaces extérieurs pensés pour le confort et la convivialité.
Plus que 4 terrains disponibles !
Un programme quasiment entièrement commercialisé, reflet de son attractivité et de la qualité de son emplacement.
Ce terrain représente une opportunité rare pour concrétiser un projet de maison individuelle dans un secteur recherché, combinant cadre naturel, calme et accessibilité.
Avec Maisons Balency - Groupe Hexaôm, premier constructeur de maisons individuelles en France, profitez d'un accompagnement personnalisé à chaque étape de votre projet.
Nos constructions respectent la réglementation environnementale RE2020, garantissant confort, performance énergétique et durabilité.
Contact
Maisons BALENCY - Agence d'Ormoy
23 chemin de Tournenfils, 91540 Ormoy
tel : 09 67 70 15 81
Terrains proposés par nos partenaires fonciers, sous réserve de disponibilité à la date de diffusion.
Annonce proposée par un Agent Commercial Partenaire.
Mentions légales
Terrain proposé par un partenaire foncier selon disponibilités et autorisation de publicité au prix de 178 000 €. Hors droit d'enregistrement et frais de notaire. Terrain + Maison proposés au prix de 478 000 € (Hors branchements et raccordements, papiers peints, peintures, revêtement de sol dans les chambres. Tarif modifiable sans préavis). Etiquette énergie : A. Différents modèles disponibles pour ce terrain. Assurances et garanties du constructeur (RC professionnelle, décennale, dommage ouvrage, garantie de remboursement de l'acompte, livraison à prix et délai convenu) : https://www.maisons-balency.fr/informations-legales/. HEXAOM Services est enregistré auprès de l'ORIAS en tant que Courtier en financement, Niveau 1, sous le numéro 14001345.Agence Maisons Balency de Ormoy (91540)
- Téléphone :
- 09 67 70 15 81
- Adressse :
- 23 chemin de Tournenfils - 1er étage
91540 Ormoy, France
